Huutokaupat.com
Hae sivustolta

Kiinteistönvälitys LKV Saaga Oy (SKVL jäsen) sells

Well-maintained tidy commercial/office space in Kuusamo town centre. Kitkantie 8 C3, C9, C13. Already leased!, Kuusamo

Viewed 323 times

1 / 19

For Sale

Please note that this is an automatic translation. In case of any discrepancies between the original and this translated version, the original version shall prevail.

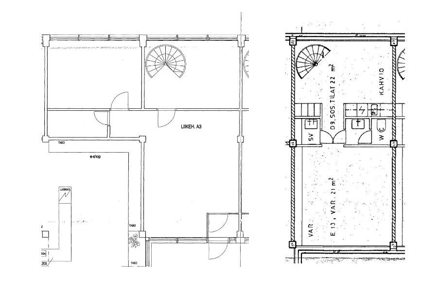
Well-maintained and tidy retail/commercial premises right in Kuusamo town centre.

Smooth ground-level access and a location in the pleasant heart of Kuusamo town centre

where customers are easily reachable.

On the ground floor 63.5 m² and in the basement staff facilities 22 m² and storage space

21 m². Service charge total €535.86/month. The shares carry no housing company loan.

The building sits on its own plot and is well maintained!


The premises are well suited, for example, to a wellbeing business.

The unit's surfaces are clean and the property has been well cared for.

Premises are let.


The property is being sold at auction. Viewings by private appointment via LKV Saaga Oy.

Further details and documents: info@lkvsaaga.fi / 050 330 2037

Terms of Sale

The seller reserves the right to accept or reject the highest bid.

The item is sold as a transaction between users. Huutokaupat.com does not act as a party to the transaction.

The highest bidder undertakes, after the auction ends, to make a written purchase offer through the brokerage firm. A bid placed in the Huutokaupat.com service for this property is not, by itself, a binding offer. The brokerage firm will contact the highest bidder after the auction ends to arrange a viewing of the property, inspection of the property documents and the making of a written purchase offer.

The seller is not obliged to sell the property to the highest bidder. Nor is the seller obliged to sell the property to a person who makes a written purchase offer. The broker is not responsible for the operation of the service provider's system. The highest bid is the bid that the service provider's system has accepted as the highest. By placing a bid in the Huutokaupat.com service, the bidder accepts these terms of sale.

Files

  • energiatodistus-10845-fi Jyrävä Kuusamo.pdf
  • Yhteisösäännöt.pdf
  • Talousarvio Kiinteistö Oy Jyrävä 2025 (4).pdf
  • Kertomus2024_KiOyJyrava.pdf
  • Kiinteistö Oy Jyrävä, Tilinpäätös ja toimintakertomus 31122024 FINAL.pdf
  • Esite Kitkantie 8C.pdf
2 items right now
1 sold item since July 2021

Auction and Bidding

Time left

No bids

Starting price €0

No deductible VAT

Kirjaudu sisään, jotta voit huutaa

Tee tunnus

Auction ends Sat, 17/01/2026 at 18:25, or 3 min after the last bid

Bids

Bids
0 pcs
Bidders
0 pcs
Loading...

Item number: 5964971

Viewed 323 times

Entry details

Item location

Kitkantie 8 C3, C9, C13, 93600 Kuusamo

Open map

Inquiries

Viewing the item

By agreement. Private viewings: LKV Saaga Oy / Juuso Kallinkoski, LKV info@lkvsaaga.fi / 050 330 2037

Payment method

Payment method is agreed separately with the seller.

Last updated

18 Dec 2025, 10:25

Share with friends

Report listing
2 items right now
1 sold item since July 2021

Muut katsoivat myös

Asuntokehitykseen suunniteltu toimistokohde Pohjois-Haagassa, Helsinki

Reagle Oy sells

€6,000

27 bids

3 h 1 min

Time left

Helsingin Töölössä, hienossa, vanhassa rakennuksessa 168 m2 kellarin monitoimitila, Helsinki

As Oy Lappeenrannan Vainikkalan Rajamiehentie sells

€1,000

2 bids

2 d 8 h

Time left

To highest bidder

Voisit pitää myös näistä