Vuonna 2020 valmistunut hallirakennus, Pomarkku
Kankaanpään Laki ja Kiinteistö Oy (SKVL jäsen) myy
31 000 €
22 tarjousta
1 pv 20 t
Aikaa jäljellä
Katsottu 9 273 kertaa
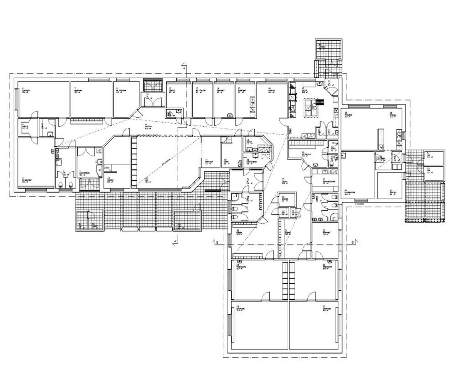
Lappeenrannan kaupunki myy nettihuutokaupalla Lappeenrannan kaupungin Leirin kaupunginosassa sijaitsevan kiinteistön 405-5-16-20 ja kiinteistöllä sijaitsevan vuonna 1982 rakennetun entisen Leirin päiväkotirakennuksen.
Päiväkodin toiminta on loppunut 10.2.2017.
Rakennuksen päädyssä on erillinen huoneisto.
Rakennus on yksikerroksinen ja se on perustettu betonianturoille maanvastaisella alapohjalla.
Ulkoseinät ovat tiili-mineraalivilla-tiilirunkoisia, ulkopinnassa on 3-kerrosrappaus.
Yläpohja on puurunkoinen.
Rakennuksessa on koneellinen tulo- ja poistoilmanvaihto.
Rakennuksesta on tehty kuntotutkimus 2016.
Lisätietoja kohteesta antaa:
Kiinteistöpäällikkö Kimmo Valtonen, kimmo.valtonen@lappeenranta.fi
Maankäyttöinsinööri Tiina Rissanen, tiina.rissanen@lappeenranta.fi
Kohdetta esittelee ennalta sovittavana ajankohtana: Kiinteistöhuoltaja Mika Haiko, mika.haiko@saimaantukipalvelut.fi
Osoite: Lentäjäntie 1-3, 53600 Lappeenranta
Kiinteistötunnus: 405-5-16-20
Maapinta-ala: 5942 m2
Kaavatilanne: Asemakaava.
Kaavamääräys: Y3, Yleisten rakennusten korttelialue. Rakennusoikeus: 2971 k-m2, e= 0,5
Rakennukset.
Rakennusvuosi: 1982 Huoneistoala: 681 m2 Kerrosala: 775 m2
Tilavuus: 2530 m3
Kerrosluku: Yksikerroksinen.
Rakennustapa: Paikalla rakennettu.
Rakennusmateriaali: Tiili–mineraalivilla–tiilirunko, ulkopinnassa 3-kerrosrappaus.
Vesikatto: Harjakatto, minertiittikate eli ns. varttikate.
Lämmitysmuoto, sähköliittymät, vesi ja jätevesi.
Lämmitysmuoto: Kaukolämpö, liittymä on purettu.
Sähkö: Lappeenrannan Energia Oy:n sähköliittymä, liittymisoikeus 3x160A.
Vesi ja jätevesi: Kohde on liitetty kunnalliseen talousvesi- ja jätevesijärjestelmään.
Liittymien kunto: Liittymien tekninen kunto on myyjän arvion mukaan välttävä.
Liittymämaksut: Myyjä vastaa kaikista liittymäsopimukseen perustuvista maksuista kiinteistön hallintaoikeuden siirtymispäivään asti. Liittymien omistuksen siirtyminen: Liittymäsopimuksiin perustuvat oikeudet siirretään ostajalle ilman erillistä korvausta.
Hoito- ja ylläpitokustannukset: Kaupan kohteen kaikista hoito- ja ylläpitokustannuksista vastaa myyjä hallintaoikeuden siirtymispäivän asti.
Rasitteet: Kiinteistöä rasittaa johtorasite (405-1981-K2, kaukolämpö).
Kiinteistön osuudet yhteisiin alueisiin ja erityisiin etuuksiin: Ei osuuksia yhteisiin alueisiin tai erityisiin etuuksiin.
Energiatodistus: Uusin energiatodistus on vuodelta 2014.
Irtaimisto: Rakennuksessa säilytetään kolmansien osapuolten omaisuutta, joka on merkitty eivätkä ne kuulu kauppaan.
Muu rakennuksissa oleva vähäarvoinen irtaimisto siirtyy ostajalle ilman eri korvausta.
Myyjä ei vastaa irtaimiston kunnosta tai käyttökelpoisuudesta, vaan ne luovutetaan romuna ja ostaja vastaa niiden poistamisesta.
Myyjä pidättää oikeuden hyväksyä tai hylätä korkein tarjous.
Kohde myydään käyttäjien välisenä kauppana. Huutokaupat.com ei toimi kaupan osapuolena.
Tarjoajat sitoutuvat siihen, että heidän yhteystietonsa voidaan luovuttaa Huutokaupat.comin toimesta ilmoittajalle myyntipäätöksen ja siitä tiedottamisen mahdollistamiseksi.
Kohde myydään rakennuksineen tarjouskilpailun voittajalle siinä kunnossa ja niillä varusteilla kuin se myynti-ilmoituksessa ja kaupantekohetkellä on, lukuun ottamatta omaisuutta, joka on merkitty myyjälle kuuluvaksi. Huutokauppaan osallistuvan on itse tutustuttava kohteeseen ennen sitovan tarjouksen tekemistä
Kohde voidaan myydä vain huutokaupat.com -järjestelmään kirjatun korkeimman tarjouksen tehneelle. Myynti-Ilmoituksen kuvaukset ovat ainoastaan myyjän arvioita myytävästä kohteesta. Tarjouksen jättämällä huutaja hyväksyy kohteen kunnon sellaisenaan. Lappeenrannan Toimitilat Oy varaa oikeuden hyväksyä tai hylätä korkeimman tarjouksen.
Lopullisesta kaupan hyväksymisestä päättää kaupungin toimielin. Kauppakirjat ja maksuliikenne. Kaikki maksuliikenne ja kauppakirjat tehdään Lappeenrannan kaupungin Elinkeino ja kaupunkikehitys -toimialan kanssa. Kaupanteossa käytetään myyjän laatimaa kauppakirjaa. Kauppakirjan allekirjoittamisajankohta ja paikka sovitaan ostajan kanssa erikseen.
Kauppahinnan maksaminen tapahtuu tilisiirtona myyjän ilmoittamalle tilille ennen kaupan allekirjoittamista. Lappeenrannan Toimitilat Oy vastaa kaupanvahvistajan palkkiosta tai Maanmittauslaitoksen kiinteistönvaihdantapalvelun asiointimaksusta. Ostaja vastaa kiinteistökaupasta menevästä varainsiirtoverosta, joka on 4 % kauppahinnasta. Ostaja hakee lainhuudon saannolle puolen vuoden kuluessa kauppakirjan allekirjoittamisesta ja maksaa lainhuudatuskulut.
Yhteyshenkilönä maankäyttöinsinööri Tiina Rissanen, tiina.rissanen@lappeenranta.fi
Kaupasta vetäytyminen
Osapuolen, joka kieltäytyy tekemästä kauppaa, on maakaaren perusteella korvattava toiselle osapuolelle ilmoittelusta, kiinteistöön tutustumisesta sekä muista kaupantekoon liittyvistä tarpeellisista toimista aiheutuneet, kohtuulliset kustannukset.
Huutokauppa päättyi 15.12.2020 klo 21.17
MyytyEi tarjouksia
Lähtöhinta 0 €
Ei vähennettävää arvonlisäveroa
Huutokauppa päättyy ti 15.12.2020 klo 21.17, tai 3 min viimeisen tarjouksen jälkeen
Kohdenumero: 2235085
Katsottu 9 273 kertaa
Sopimuksen mukaan
Maksutapa sovitaan myyjän kanssa erikseen.
29.10.2020 klo 11.20
Kankaanpään Laki ja Kiinteistö Oy (SKVL jäsen) myy
31 000 €
22 tarjousta
1 pv 20 t
Aikaa jäljellä
OP Koti Pohjoinen Oy LKV myy
1 000 €
Lähtöhinta
1 pv 21 t
Aikaa jäljellä
As Oy Lappeenrannan Vainikkalan Rajamiehentie myy
1 000 €
2 tarjousta
1 pv 21 t
Aikaa jäljellä
Forest Team Hassinen Oy myy
50 000 €
Lähtöhinta
1 pv 23 t
Aikaa jäljellä
Ylä-Savon Osuuspankki myy
0 €
Lähtöhinta
6 pv 20 t
Aikaa jäljellä
Kiteen kaupunki myy
500 €
1 tarjous
7 pv 22 t
Aikaa jäljellä
Riihi Asianajotoimisto Oy myy
25 €
1 tarjous
8 pv 20 t
Aikaa jäljellä
Verkkolammen Hoitokoti Oy myy
5 000 €
6 tarjousta
8 pv 22 t
Aikaa jäljellä
TT Funding Oy myy
28 000 €
55 tarjousta
9 pv 21 t
Aikaa jäljellä
AJAA Kapital Oy myy
0 €
Lähtöhinta
12 pv 22 t
Aikaa jäljellä
Juuan kunta myy
2 000 €
4 tarjousta
18 pv 23 t
Aikaa jäljellä
Helsingin kaupunki, Kaupunkiympäristön toimiala myy
1 860 €
112 tarjousta
19 pv 15 t
Aikaa jäljellä
Metsänhoitoyhdistys Keski-Suomi ry myy
0 €
Lähtöhinta
21 pv 1 t
Aikaa jäljellä
Enon Autohuolto myy
47 500 €
Lähtöhinta
21 pv 22 t
Aikaa jäljellä
Mänttä-Vilppulan kaupunki myy
500 €
2 tarjousta
22 pv 23 t
Aikaa jäljellä
VR Consulting Oy myy
100 000 €
Lähtöhinta
25 pv 16 t
Aikaa jäljellä
Kouvolan kaupunki myy
5 000 €
Lähtöhinta
26 pv 17 t
Aikaa jäljellä
Olena Obraztsova Tmi myy
20 000 €
Lähtöhinta
2 pv 20 t
Aikaa jäljellä
Procolor Autopalvelut myy
1 000 €
2 tarjousta
8 pv 20 t
Aikaa jäljellä
Asianajotoimisto Fenno myy
0 €
Lähtöhinta
22 pv 22 t
Aikaa jäljellä
Kiinteistönvälitys LKV Saaga Oy (SKVL jäsen) myy
0 €
Lähtöhinta
28 pv 20 t
Aikaa jäljellä
Kiinteistönvälitys LKV Saaga Oy (SKVL jäsen) myy
1 000 €
1 tarjous
28 pv 21 t
Aikaa jäljellä