14.4. klo 19.45
Liike-/asuinkiinteistö Hausjärvi, Hausjärvi
Jukka mäkeläinen Tmi myy
75 000 €
Lähtöhinta
14.4. klo 19.45
Eniten tarjoavalle
Katsottu 2 206 kertaa
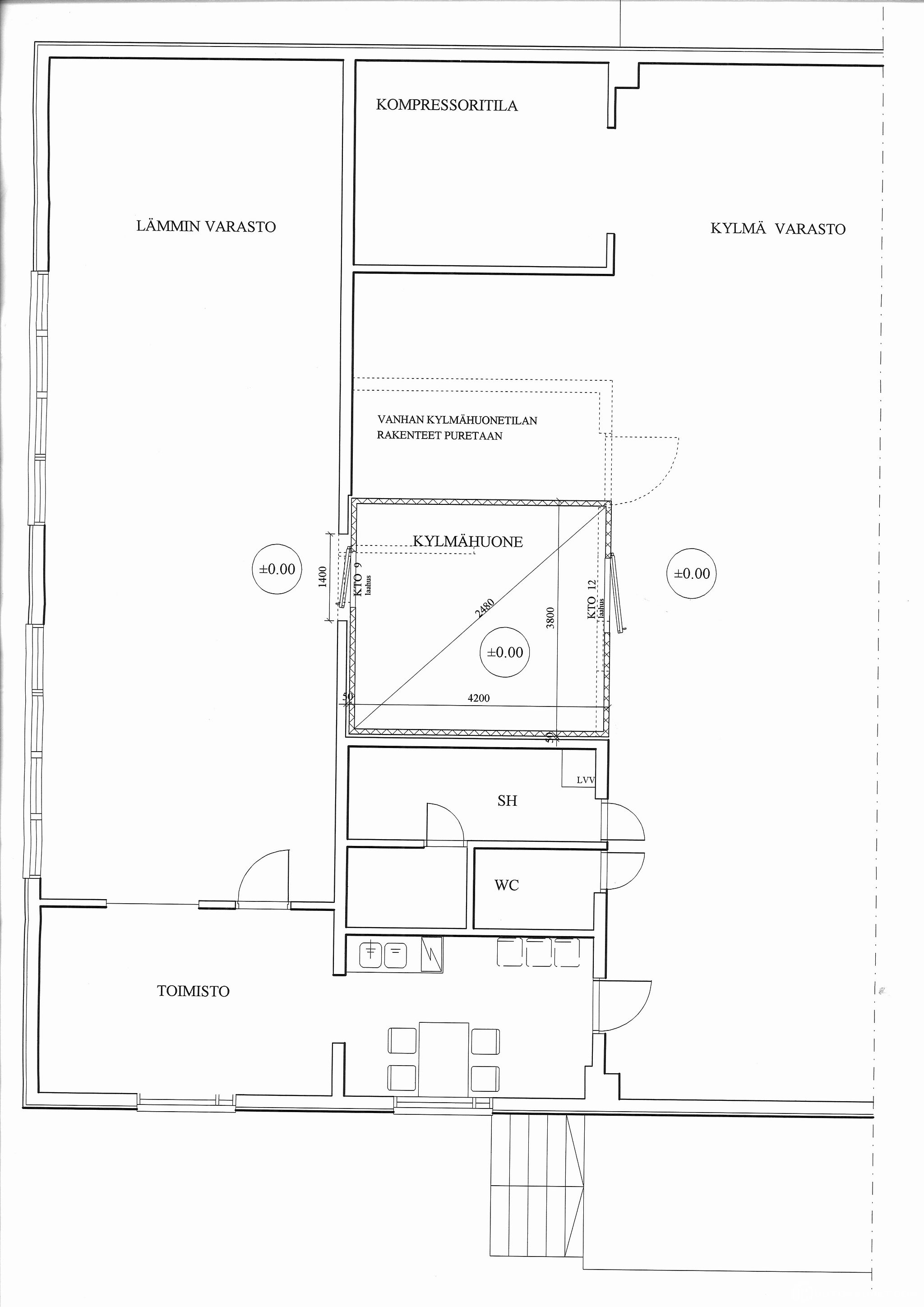
Myytävä kohde on Suomussalmen kunnan taajamassa osoitteessa Ratakatu 2, 89600 Suomussalmi sijaitseva kiinteistö. Kiinteistön lohkomisprosessi on käynnissä, ja sen pinta-ala tulee olemaan noin 8 200 m². Lohkomiskustannuksista vastaa myyjä. Alueella vaikuttaa Ämmänsaari -Suomusalmi 21.2.1983 osayleiskaava.
Kiinteistössä sijaitsee vuonna 1979 rakennettu peltiverhoiltu betonipalkkinen entinen maataloustarvikemyymälä varastoineen. Rakennus on liitetty kunnalliseen vesi- ja viemäriverkostoon, liittymät kuuluvat kauppaan. Rakennuksessa on sähkölämmitteistä entistä myymäläosaa 153 m², jossa on koneellinen ilmanvaihto ja ilmalämpöpumppu, kylmiö 10 m² sekä lisäksi WC ja muita aputiloja. Lämmin tila on rakennettu vuonna 2001 entisen maitoautopesuhallin tilalle. Kylmää varastotilaa, jossa on lastauslaituri, on noin 483 m². Piha-alue on asfaltoitu.
Kylmiö on remontoitu vuonna 2006 ja vesikatto vuonna 2013.
Myyjä pidättää oikeuden hyväksyä tai hylätä korkein tarjous.
Kohde myydään käyttäjien välisenä kauppana. Huutokaupat.com ei toimi kaupan osapuolena.
Myyntiehdot
Osuuskunta Maitosuomi pidättää oikeuden hyväksyä tai hylätä korkein tarjous.
Kohde myydään käyttäjien välisenä kauppana. Huutokaupat.com ei toimi kaupan osapuolena.
Tarjoajat sitoutuvat siihen, että heidän yhteystietonsa voidaan luovuttaa Huutokaupat.comin toimesta ilmoittajalle myyntipäätöksen ja siitä tiedottamisen mahdollistamiseksi.
Tarjoukset tehdään annettuun ajankohtaan mennessä. Tarjouksen tehnyt hyväksyy myyntiehdot suorittaessaan huudon.
Kohteeseen tutustuminen
Huutajalla on ennen tarjouksen tekemistä velvollisuus tutustua kyseiseen kiinteistöön, dokumentteihin ja asiakirjoihin. Ostaja ei jälkikäteen voi vedota sellaiseen seikkaan, joka olisi ennakkotarkastuksessa voitu havaita.
Myyjän antamat tiedot
Osuuskunta Maitosuomi vakuuttaa antaneensa ostajalle kaikki tiedot, jotka myyjä tietää ja joiden voidaan olettaa vaikuttavan kauppaan.
Kaupan solmiminen
Kiinteistön kauppa on tehtävä maakaaressa säädetyssä muodossa. Kauppakirjan allekirjoittamisajankohta ja paikka sovitaan ostajan kanssa erikseen. Kauppahinnan maksaminen tapahtuu kaupantekotilaisuudessa. Kaupasta johtuvat lakisääteiset maksut kuuluu ostajalle.
Muut kustannukset
Ostaja vastaa kulloinkin voimassa olevan verokäytännön mukaisesta varainsiirtoverosta.
Kaupasta vetäytyminen
Osapuolen, joka kieltäytyy tekemästä kauppaa, on maakaaren perusteella korvattava toiselle osapuolelle ilmoittelusta, kiinteistöön tutustumisesta sekä muista kaupantekoon liittyvistä tarpeellisista toimista aiheutuneet, kohtuulliset kustannukset.
Aikaa jäljellä
Kohdenumero: 6165137
Katsottu 2 206 kertaa
Kohteessa järjestetään näyttö maanantaina 30.3.2026 klo 13-14 ja muut näytöt sopimuksen mukaan. Yhteyshenkilö on kiinteistövälittäjä Juhani Seppänen puh. 0500 280 254
Maksutapa sovitaan myyjän kanssa erikseen.
24.3.2026 klo 8.20
14.4. klo 19.45
Jukka mäkeläinen Tmi myy
75 000 €
Lähtöhinta
14.4. klo 19.45
Eniten tarjoavalle
16.4. klo 18.35
Commercia Mundi Oy myy
0 €
Lähtöhinta
16.4. klo 18.35
16.4. klo 18.45
16.4. klo 20.00
Asianajotoimisto Fenno myy
500 €
1 tarjous
16.4. klo 20.00
17.4. klo 21.00
Mänttä-Vilppulan kaupunki myy
3 250 €
Lähtöhinta
17.4. klo 21.00
19.4. klo 19.00
19.4. klo 20.20
OP Koti Etelä-Pohjanmaa Oy LKV myy
500 €
1 tarjous
19.4. klo 20.20
20.4. klo 18.20
Eniten tarjoavalle
20.4. klo 20.40
Una Casa LKV Oy myy
0 €
Lähtöhinta
20.4. klo 20.40
21.4. klo 18.30
Lapin Hyvinvointialue myy
85 000 €
25 tarjousta
21.4. klo 18.30
22.4. klo 18.00
Helsingin kaupunki, Kaupunkiympäristön toimiala myy
42 993 €
Lähtöhinta
22.4. klo 18.00
23.4. klo 19.05
Royal House Oy myy
10 000 €
1 tarjous
23.4. klo 19.05
24.4. klo 18.00
Keski-Suomen Kiinteistönvälitys, LKV myy
20 000 €
Lähtöhinta
24.4. klo 18.00
Eniten tarjoavalle
25.4. klo 20.00
25.4. klo 21.00
Kiinteistö Oy Viialan Nahkatehdas myy
20 000 €
Lähtöhinta
25.4. klo 21.00
Eniten tarjoavalle
26.4. klo 18.00
Kiinteistö Oy Viialan Nahkatehdas myy
20 000 €
Lähtöhinta
26.4. klo 18.00
Eniten tarjoavalle
26.4. klo 19.30
Suomen metsäkeskus – Finlands skogscentral myy
0 €
Lähtöhinta
26.4. klo 19.30
Eniten tarjoavalle
27.4. klo 12.00
OP Koti Varsinais-Suomi Oy LKV myy
150 000 €
Lähtöhinta
27.4. klo 12.00
28.4. klo 13.00
Ulosottolaitos, Rovaniemi realisointi (Rovaniemi, Kemi, Kuusamo) myy
0 €
Lähtöhinta
28.4. klo 13.00
28.4. klo 19.45
Realog Oy myy
15 000 €
Lähtöhinta
28.4. klo 19.45