Tänään klo 18.00
Toimistoksi, harrastetilaksi tai -varastoksi iso kokonaisuus huippusijainnilla Kuusamon keskustassa., Kuusamo
OP Koti Pohjoinen Oy LKV myy
120 €
2 tarjousta
Tänään klo 18.00
2,0
Katsottu 54 kertaa
Myytävä kohde
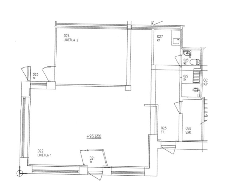
Tuotantoyhtiö Hihhihhii Oy:n konkurssipesä myy As Oy Valtakäyrästä, osoitteesta Valtakäyrä 4, 11100 Riihimäki liikehuoneiston osakkeet, jotka oikeuttavat hallinnoimaan liikehuoneistoa LH 1.
Kauppaan ei kuulu irtainta omaisuutta.
Tietoja kohteesta
Liikehuoneiston pinta-ala on isännöitsijäntodistuksen perusteella yhteensä 93,5 m2. Huoneiston pinta-alaa ei ole tarkistusmitattu.
Liikehuoneistoon kohdistuu vastikevelkaa per 31.12.2025 yhteensä 14.596,43 euroa. Kaupantekohetken mukainen vastikevelan määrä ja kulut jäävät ostajan vastattavaksi kokonaisuudessaan ja ne tulee suorittaa As Oy Valtakäyrälle. Huom! Todellinen kaupantekohetken mukainen velkamäärä tarkastetaan kaupantekohetken mukaiseksi ja on edellä mainittua suurempi.
Konkurssipesä on 29.5.2024 saanut As Oy Valtakäyrältä tiedon, että yhtiökokous on ottanut liikehuoneiston hallintaansa kolmeksi vuodeksi maksamattomien vastikkeiden vuoksi. Kun kaupanteko konkurssipesän kanssa on tehty ja kauppahinta maksettu, taloyhtiö luovuttaa liikehuoneiston hallinnan uudelle omistajalle vastikerästien maksun jälkeen. Hallinnan osalta ostajan tulee kuitenkin huomioida, että kohde myydään vuokrattuna.
Viimeisimmät isännöitsijältä saadut tiedot myytävästä kohteesta:
- Liikehuoneistossa on tällä hetkellä kaksi vuokralaista, jotka jakavat yhteisen wc-tilan. Vuokran suuruus yhteensä 550 €/kk.
- Tämänhetkinen hoitovastike on 392,70 €/kk ja rahoitusvastike 499,29 €/kk.
- Osakkeisiin kohdistuvan yhtiövelan määrä on 13.428,84 € per 31.12.2025.
- Yhtiöön ei ole suunnitteilla lähivuosille suurempia remontteja, kuten putki-, julkisivu- tai sähkösaneerauksia.
- Viimeisin energiatodistus on vanhentunut 31.12.2025. Uusi energiatodistus on tilattu, mutta isännöitsijä ei ole sitä vielä saanut.
Myyjä pidättää oikeuden hyväksyä tai hylätä korkein tarjous.
Kohde myydään käyttäjien välisenä kauppana. Huutokaupat.com ei toimi kaupan osapuolena.
Ostaja ottaa 14 596,43 € suuruisen velkaosuuden vastatakseen.
Myyjä pidättää oikeuden hyväksyä tai hylätä korkeimman tarjouksen. Tarjouksen hyväksyntä on ehdollinen konkurssipesän suurimpien velkojien hyväksynnälle.
Kohde myydään siinä kunnossa ja niillä varusteilla kuin se kaupantekohetkellä on. Selvyydeksi todetaan, että kuvien irtain omaisuus kuuluu vuokralaisille, eikä kaupan mukana tule irtainta omaisuutta.
Kohteelle ei anneta mitään vakuuksia ja se myydään ”sellaisena kuin se on” ehdoin. Tarjouksen jättämällä huutaja hyväksyy kohteen kunnon sellaisenaan.
Ilmoituksen kuvaukset ovat ainoastaan myyjän arvioita myytävästä kohteesta.
Ostajan tulee ymmärtää, että myyjänä on konkurssipesä, joka lopetetaan konkurssimenettelyn päätyttyä.
Kohteeseen tutustuminen
Huutajan tulee tutustua kohteeseen ennen sitovan tarjouksen tekemistä.
Ilmoituksen liitteenä:
- Isännöitsijäntodistus
- Yhtiöjärjestys
- Toimintakertomus ja tilinpäätös vuodelta 2024, tilintarkastuskertomus 13.4.2025 ja talousarvio vuodelta 2025
- Energiatodistus ajalle 2015-2025
Suosittelemme kohteeseen tutustumista paikan päällä.
Mikäli olet kiinnostunut kohteesta, pyydämme olemaan erikseen yhteydessä erillisen näyttöajankohdan sopimiseksi osoitteeseen moona.riikonen@fennolaw.fi.
Huutaminen
Huudot tehdään huutokaupat.com -palvelussa annettuun ajankohtaan mennessä.
Myyjä ei vastaa palveluntarjoajan järjestelmän toimivuudesta. Korkein tarjous on se tarjous, jonka palveluntarjoajan järjestelmä on korkeimpana hyväksynyt.
Tarjouksen tekijät hyväksyvät tarjousta tehdessään sen, että heidän tietonsa luovutetaan kohteen ilmoittajalle tarjousten hyväksymisen vuoksi.
Huutokaupan päättymisen jälkeen konkurssipesä ottaa yhteyttä korkeimman tarjouksen tehneeseen.
Huudosta vetäytyminen
Mikäli huutaja vetäytyy hyväksytystä huudosta, tulee hänen korvata myyjälle epäonnistuneen huutokaupan järjestämisestä aiheutuneina kustannuksina 1.000,00 €.
Kaupan solmiminen
Kaupanteon ajankohta sovitaan ostajan kanssa erikseen huutokaupan päätyttyä.
Kaupanteossa käytetään myyjän laatimaa kauppakirjaa.
Myyjä hankkii osakkeisiin liittyvät viralliset otteet kaupanteon yhteyteen.
Ostaja maksaa kauppahinnan myyjän ilmoittamalle pankkitilille kaupantekotilaisuudessa. Vastikerästit suoritetaan As Oy:lle.
Ostaja saa kohteen omistusoikeuden kauppakirjan allekirjoittamisen ja kauppahinnan maksamisen jälkeen.
Muut kustannukset
Ostaja vastaa varainsiirtoverosta.
Aikaa jäljellä
Kohdenumero: 6095193
Katsottu 54 kertaa
Sopimuksen mukaan, yhteydenotot moona.riikonen@fennolaw.fi
Maksutapa sovitaan myyjän kanssa erikseen.
19.2.2026 klo 13.21
Tänään klo 18.00
OP Koti Pohjoinen Oy LKV myy
120 €
2 tarjousta
Tänään klo 18.00
Tänään klo 18.00
Kiinteistö Oy Pielisentie 41 myy
9 400 €
13 tarjousta
Tänään klo 18.00
Eniten tarjoavalle
21.2. klo 19.55
22.2. klo 18.00
Kiinteistö Parikka LKV (SKVL jäsen) myy
0 €
Lähtöhinta
22.2. klo 18.00
Eniten tarjoavalle
22.2. klo 18.00
Ulosottolaitos, Lappeenrannan toimipaikka myy
100 €
1 tarjous
22.2. klo 18.00
22.2. klo 18.00
22.2. klo 19.40
Klaava Kiinteistöt Oy myy
200 €
4 tarjousta
22.2. klo 19.40
23.2. klo 13.00
Ulosottolaitos, Varsinais-Suomen toimipaikat myy
500 €
1 tarjous
23.2. klo 13.00
23.2. klo 18.40
Emmika Oy myy
3 000 €
Lähtöhinta
23.2. klo 18.40
Eniten tarjoavalle
23.2. klo 19.05
Asianajotoimisto Fenno myy
0 €
Lähtöhinta
23.2. klo 19.05
23.2. klo 19.30
23.2. klo 20.00
Eniten tarjoavalle
27.2. klo 12.00
Indinet Oy myy
200 €
2 tarjousta
27.2. klo 12.00
28.2. klo 13.00
Helsingin kaupunki, Kaupunkiympäristön toimiala myy
305 €
1 tarjous
28.2. klo 13.00
28.2. klo 13.00
Helsingin kaupunki, Kaupunkiympäristön toimiala myy
302 €
Lähtöhinta
28.2. klo 13.00
28.2. klo 13.00
Helsingin kaupunki, Kaupunkiympäristön toimiala myy
296 €
2 tarjousta
28.2. klo 13.00
28.2. klo 13.00
Helsingin kaupunki, Kaupunkiympäristön toimiala myy
378 €
Lähtöhinta
28.2. klo 13.00
1.3. klo 18.00
Sea Fur Oy myy
1 000 €
4 tarjousta
1.3. klo 18.00
1.3. klo 19.00
Ulosottolaitos, Länsi-Uudenmaan toimipaikat myy
2 100 €
2 tarjousta
1.3. klo 19.00
1.3. klo 19.00
25.2. klo 18.55
Eniten tarjoavalle
4.3. klo 14.00
Indinet Oy myy
0 €
Lähtöhinta
4.3. klo 14.00
12.3. klo 20.00
Joensuun kaupunki myy
0 €
Lähtöhinta
12.3. klo 20.00
18.3. klo 19.30
Turunmaan Kiinteistöt Oy LKV myy
100 000 €
Lähtöhinta
18.3. klo 19.30
20.3. klo 18.20
Eniten tarjoavalle
23.3. klo 15.00
Lapin Hyvinvointialue myy
0 €
Lähtöhinta
23.3. klo 15.00