Today at 21:00
Keyhouse Oy sells
Vesilahti Old Fire Station, Vesilahti
Viewed 2,193 times
For Sale
Please note that this is an automatic translation. In case of any discrepancies between the original and this translated version, the original version shall prevail.
The old fire station building of Vesilahti municipality is for sale by auction. The building is centrally located opposite the church.
Block area for residential, commercial and office buildings; the zoning plan includes a preservation requirement.
The property has most recently been used as office space on the upper floor and as a workshop on the ground floor.
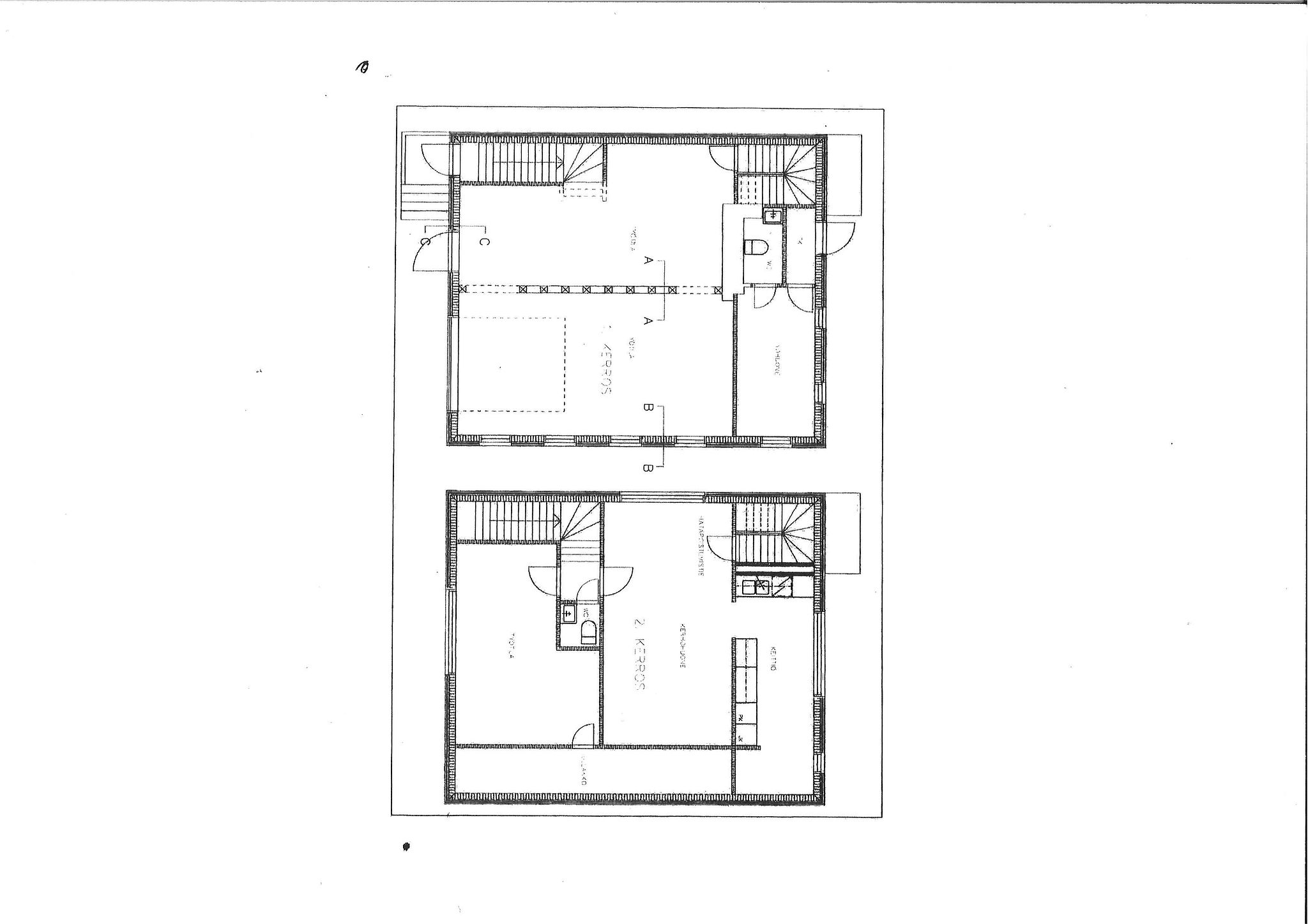
Ground floor: workshop/warehouse space, storage and a WC. Air-source heat pump.
Upper floor: 2 rooms, separate WC and kitchen. Cold side attics.
The property is sold with liability limitation clauses and the buyer accepts responsibility for future repairs. Condition is satisfactory. Access to the tower is closed.
Plot area is 420 m². Electric heating; connected to municipal utilities.
Further information:
0505909972 / Johanna Kinnunen
johanna.kinnunen@spkoti.fi
Terms of Sale
The seller reserves the right to accept or reject the highest bid.
The item is sold as a transaction between users. Huutokaupat.com does not act as a party to the transaction.
Offers must be made by the stated deadline. The highest bid is the bid that the seller has accepted as highest. It is also possible to participate in the auction in person on site by submitting an offer to the seller. The seller and buyer agree to record all bids in the system. The bidder accepts these terms of sale when placing a bid.
Viewing the property
The bidder is obliged before making a bid to familiarise themselves with the property, documents and records. The buyer may not later rely on any matter that could have been observed during the preliminary inspection.
Information provided by the seller
The seller warrants that they have given the buyer all information the seller knows and that can be expected to affect the transaction.
The seller is not liable for the condition, characteristics or defects of the buildings on the property, for underlying faults or for any damage or costs that may result from such defects or faults. The buyer accepts responsibility for all measures and costs required to repair or demolish the buildings, whether or not these were noted in the documents provided to the buyer before the contract, whether they were latent, or whether they have harmful effects on health or the environment.
The buyer undertakes that they have no present or future claims against the seller based on defects in the buildings on the property, including claims for rescission, price reduction or damages.
Conclusion of the sale
The sale must be made in the form required by the Land Code. The date and place for signing the deed will be agreed separately with the buyer. Payment of the purchase price takes place at the signing event. The fee for the official confirming the sale is paid half by the seller and half by the buyer.
Other costs
The buyer is responsible for the transfer tax in accordance with the applicable tax practice.
Withdrawal from the sale
A party who refuses to complete the sale must, under the Land Code, compensate the other party for reasonable costs incurred from advertising, viewing the property and other necessary actions related to the sale.
Files
- 922-413-3-189_KO_1768832317741.pdf
- Pohjapiirustus.pdf
- 922-413-3-189_ATKT_1768832295506.pdf
- Kaavaote.pdf
- Kaavamääräys.pdf
Time left
- Bids
- 0 pcs
- Bidders
- 0 pcs
Item number: 6081159
Viewed 2,193 times
Viewing the item
Viewing Wednesday 4 March, 15:00–16:00 — Johanna Kinnunen
Payment method
Payment method is agreed separately with the seller.
Last updated
12 Feb 2026, 16:26
Share with friends
Muut katsoivat myös
08/03 at 19:25
Liike- ja kehityskiinteistö Kuusamon ydinkeskustassa, Kuusamo
Parki Oy sells
€15,000
Starting price
08/03 at 19:25
To highest bidder
09/03 at 20:05
Valoisa ja edustava kulmaliikehuoneisto Hämeenlinnan ydinkeskustassa, Hämeenlinna
OP Koti Häme Oy LKV sells
€0
Starting price
09/03 at 20:05
To highest bidder
11/03 at 18:20
Herajoen työväentalo, Riihimäki esittely su 08.03.2026 kello 14:00-15:00, Riihimäki
Kiinteistönvälitys Johacon Oy LKV (SKVL jäsen) sells
€32,000
15 bids
11/03 at 18:20
11/03 at 20:20
11/03 at 20:40
12/03 at 14:00
Monikäyttöinen liiketilakokonaisuus joka muutettavissa asuinkäyttöön!, Hamina
Aitoa välittämistä Oy (SKVL jäsen) sells
€4,600
Starting price
12/03 at 14:00
To highest bidder
12/03 at 18:00
Toimistohuoneisto keskeisellä sijainnilla 65 m² vuokrattu, Rovaniemi, Rovaniemi
Arctic Circle Invest Oy sells
€25,000
1 bid
12/03 at 18:00
12/03 at 20:00
As Oy Joensuun Suvituuli asukaspalvelutilat, Joensuu
Joensuun kaupunki sells
€0
Starting price
12/03 at 20:00
15/03 at 18:00
VUOKRATAAN: Onkilahden kahvila, 2-vaiheinen huutokauppa, Vaasa
Vaasan kaupunki sells
€0
Starting price
15/03 at 18:00
15/03 at 19:05
Liiketila Virojoen linja-autoasemalta, 166 m2, Virolahti
Sotek-säätiö sr sells
€0
Starting price
15/03 at 19:05
To highest bidder
15/03 at 19:15
Monien mahdollisuuksien tontti ja rakennus Jäälissä, Oulu
Tilahaukka Oy sells
€7,000
7 bids
15/03 at 19:15
15/03 at 20:00
Myytävänä liikehuoneisto, As Oy Valtakäyrä, Riihimäki
Asianajotoimisto Fenno sells
€0
Starting price
15/03 at 20:00
15/03 at 20:00
Myytävänä liikehuoneisto, Asunto Oy Riihimäen Jarrumies, Riihimäki
Asianajotoimisto Fenno sells
€0
Starting price
15/03 at 20:00
15/03 at 20:05
Liike/toimistotilaa Virojoen linja-autoasemalta, 196 m2, Virolahti
Sotek-säätiö sr sells
€0
Starting price
15/03 at 20:05
To highest bidder
16/03 at 15:00
VUOKRATAAN: Tuulensuojan toimitila Naantalin Vanhankaupungin rannassa, 2.vaiheinen huutokauppa, Naantali
Naantalin kaupunki sells
€1
1 bid
16/03 at 15:00
16/03 at 18:00
18/03 at 19:30
Uniikki liiketila ja koti historiallisessa miljöössä!, Kemiönsaari
Turunmaan Kiinteistöt Oy LKV sells
€100,000
Starting price
18/03 at 19:30
18/03 at 20:10
Voisit pitää myös näistä
04/04 at 20:50
Metsäkeskuksen toimitilat kohteessa As. Oy Liikekartano, LH5, Keuruu, Keuruu
Suomen metsäkeskus – Finlands skogscentral sells
€0
Starting price
04/04 at 20:50
To highest bidder
12/04 at 18:00
Ulosmitattu liikehuoneisto Helsingin Paloheinässä, Helsinki
Ulosottolaitos, Helsingin toimipaikka sells
€0
Starting price
12/04 at 18:00
04/05 at 13:00
Eteläinen Rautatienkatu 16a. LH 2, 100,50 m2., Helsinki
Helsingin kaupunki, Kaupunkiympäristön toimiala sells
€0
Starting price
04/05 at 13:00