Huutokaupat.com
Hae sivustolta

5

Huoneistokeskus Oy myy

Monien mahdollisuuksien tuotanto/ varastotilat, 1800 m², Pori

Katsottu 8 167 kertaa

1 / 24

Myydään

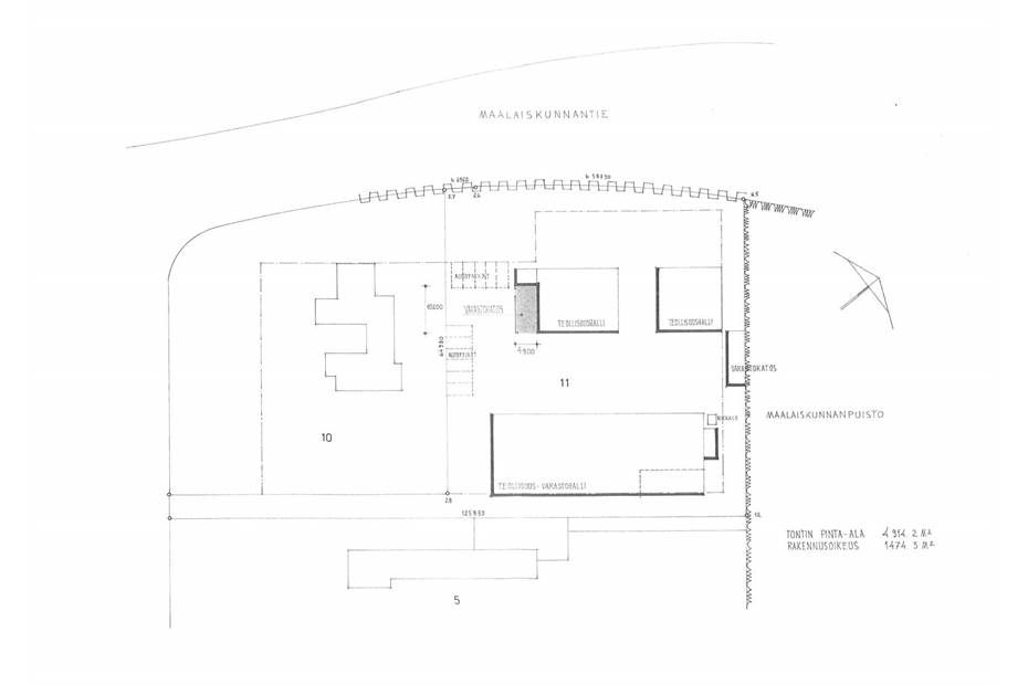
Monien mahdollisuuksien tuotanto/ varastotilat. Tilat ja varastot ovat rakentuneet jo -60 luvulla lähtien Rosenlewelle tehdyn alihankintatyön myötä. Tiloissa toiminut Porin Muovipalvelu Oy -90 luvusta alkaen. Oma tontti 4914m2. Katostilaa 400m2 ja varastotilaa 1400m2, josta lohkaistu 150m2 lämpöeristetyksi remonttiverstaaksi tulitöitä varten. Kiinteistö on kunnallistekniikassa. Tontille tehty 2016 oma porakaivo 60m syvä Grunforssin painejärjestelmällä. Jos kaivoa ei tarvitse, 60m syvän kaivon voi hyödyntää maalämmössä. Lämmityksestä huoletii 30kWh polttoöljytoiminen lämpötykki (kulutus 550 litraa / talvissa. Lisäksi vakiona 4 kpl 10kWh sähköpuhaltimia. Kohteelle ei lain mukaan tarvita energiatodistusta.


Perustiedot


Tyyppi: Tuotantotila
Sopimustyyppi: Myydään
Osoite: Maalaiskunnantie 2, 28760 Pori
Kaupunginosa: Uusiniitty
Kokonaispinta-ala: 1800 m²
Energialuokka: Kohteelle ei lain mukaan tarvita energiatodistusta.
Tuotantotila: Max m²: 1 400
Muu: Max m²: 400


Myynti ja lisätiedot


Kirsi Mäkeläinen

044 976 1809

Myyntiehdot

Myyjä pidättää oikeuden hyväksyä tai hylätä korkein tarjous.

Kohde myydään käyttäjien välisenä kauppana. Huutokaupat.com ei toimi kaupan osapuolena.

Tarjoukset tehdään annettuun ajankohtaan mennessä. Korkein tarjous on se tarjous, jonka myyjä on korkeimpana hyväksynyt. Tarjouksen tehnyt hyväksyy nämä myyntiehdot suorittaessaan huudon.

Huutajalla on ennen tarjouksen tekemistä velvollisuus tutustua kyseiseen kiinteistöön, dokumentteihin ja asiakirjoihin. Ostaja ei jälkikäteen voi vedota sellaiseen seikkaan, joka olisi ennakkotarkastuksessa voitu havaita. Huoneistokeskus Oy vakuuttaa antaneensa ostajalle kaikki tiedot, jotka myyjä tietää ja joiden voidaan olettaa vaikuttavan kauppaan.

Kiinteistön kauppa on tehtävä maakaaressa säädetyssä muodossa. Kauppakirjan allekirjoittamisajankohta ja paikka sovitaan ostajan kanssa erikseen. Kauppahinnan maksaminen tapahtuu kaupantekotilaisuudessa. Ostaja vastaa varainsiirtoverosta, joka on 4 % velattomasta kauppahinnasta (ellei täytä vakituisen ensiasunnon ostajan edellytyksiä). Kaupanvahvistajan palkkion maksavat ostaja ja myyjä puoliksi.

Osapuolen, joka kieltäytyy tekemästä kauppaa, on korvattava toiselle osapuolelle ilmoittelusta, kiinteistöön tutustumisesta sekä muista kaupantekoon liittyvistä tarpeellisista toimista aiheutuneet, kohtuulliset kustannukset. 

Tiedostot

  • Kiinteistörekisteriote.pdf (vaatii sisäänkirjautumisen)
  • Rasitustodistus.pdf (vaatii sisäänkirjautumisen)
  • Lainhuuto.pdf (vaatii sisäänkirjautumisen)

Huoneistokeskus Oy, kohteen ilmoittaja

5
Yksi ilmoitus tällä hetkellä
10 myytyä ilmoitusta joulukuusta 2020 lähtien
Lue palautteita (1)

Huutokauppa ja tarjoaminen

Huutokauppa päättyi 21.9.2023 klo 14.34

Päättynyt, tarjous hylätty

Ei tarjouksia

Lähtöhinta 0 €

Ei vähennettävää arvonlisäveroa

Huutokauppa päättyy to 21.09.2023 klo 14.34, tai 3 min viimeisen tarjouksen jälkeen

Tarjoukset

Tarjouksia
0 kpl
Tarjoajia
0 kpl
Loading...

Kohdenumero: 4340690

Katsottu 8 167 kertaa

Kohteen tiedot

Kohteen sijainti

Maalaiskunnantie 2, 28760 Pori

Avaa kartta

Tiedustelut

Kohteeseen tutustuminen

Sopimuksen mukaan / Kirsi Mäkeläinen / 044 976 1809

Maksutapa

Maksutapa sovitaan myyjän kanssa erikseen.

Päivitetty viimeksi

23.8.2023 klo 14.40

Jaa kohde kaverillesi

Ilmianna ilmoitus

Huoneistokeskus Oy, kohteen ilmoittaja

5
Yksi ilmoitus tällä hetkellä
10 myytyä ilmoitusta joulukuusta 2020 lähtien
Lue palautteita (1)

Muut katsoivat myös

KOy Heinävaaran liikekulma liikehuoneistot, Joensuu

Joensuun kaupunki myy

1 000 €

1 tarjous

7 t 23 min

Aikaa jäljellä

Liikekiinteistö Keskuskatu 24 , Keskusta, Mynämäki, Mynämäki

Procolor Autopalvelut myy

1 500 €

3 tarjousta

4 pv 5 t

Aikaa jäljellä

Eniten tarjoavalle

Voisit pitää myös näistä