Today at 21:00
Kerrostalo, Kaksio 44 m², 2022 Villivarsa A18, Kuopio
Kompassikodit Oy sells
€16,100
1 bid
Today at 21:00
To highest bidder
Riihi Capital Oy sells
Viewed 200 times
Please note that this is an automatic translation. In case of any discrepancies between the original and this translated version, the original version shall prevail.
For sale: a three-room apartment with a glazed balcony in a building with a lift. Comprehensive services of East Pori are next to the building. It is about 3.5 km to the town centre. A bus stop is nearby. The area is the so‑called developing East Pori.
The apartment can be acquired with a small down payment. Therefore it suits well as an investment property or alternatively as your own home. The housing company's loan share has been recognised in the company accounts, so the entire financing charge is tax-deductible (provided the apartment is rented out). Housing company loan €24,955.74 (as of 28 February 2026). The housing company loan is 1.8% fixed until 8 October 2028, and after that the rate is tied to the 12‑month Euribor plus a margin of 0.59 percentage points (NOTE! such loans are no longer available).
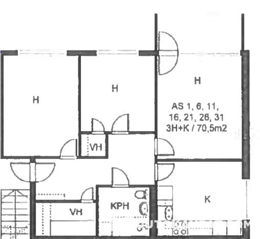
The apartment is an end unit on the 4th floor. It has a spacious kitchen, bathroom and two bedrooms. In addition there are two walk-in closets. The apartment also has a large living room and a glazed balcony. The kitchen was renovated in 2013. The apartment has been cosmetically renovated and the appliances were replaced recently. A dishwasher is included.
The apartment is currently vacant and available for the next resident.
NOTE! The property is located on its own plot.
The seller will pay the charges until 31 March 2026, after which the buyer will be responsible.
This item is subject to a reserve price. Where the reserve price is met, the seller undertakes to sell the item to the highest bidder. If the reserve price is not met, the seller reserves the right to accept or reject the highest bid.
The item is sold as a transaction between users. Huutokaupat.com does not act as a party to the transaction.
Bids start from the sale price upwards.
The buyer of the apartment assumes responsibility for the apartment's debt share of 24 955,74 €.
After the bid has been accepted, the highest bidder must pay a deposit of 2 000 € within two (2) days.
Offers must be submitted by the stated deadline. The highest offer is the offer the seller has accepted as highest. You may also participate in the auction in person by leaving an offer with the seller. The seller and buyer agree to record all offers in the system. By placing a bid the bidder accepts these terms of sale.
Viewing / inspection
Bidders must inspect the apartment and the housing company documents before making an offer. The buyer cannot later rely on a matter that could have been discovered during the prior inspection.
Information provided by the seller
The seller is responsible for the accuracy and timeliness of the documents relating to the property. The seller guarantees they have provided the buyer with all information they know and that could be expected to affect the transaction.
Conclusion of the sale
The time and place for signing the deed of sale will be agreed separately with the buyer. Payment of the purchase price and the share transfer take place at the signing.
Other costs
The buyer is responsible for the transfer tax, which is 2% of the debt-free purchase price (unless meeting the criteria for a first-time main residence buyer).
Withdrawal from the sale
If the sale does not proceed due to the bidder, the seller has the right to receive an agreed fixed compensation of €2,000.
Time left
Item number: 6115452
Viewed 200 times
Viewings: Mikko Kallioniemi 050-3526351 (after 16:00)
Payment method is agreed separately with the seller.
1 Mar 2026, 17:27
Today at 21:00
Kompassikodit Oy sells
€16,100
1 bid
Today at 21:00
To highest bidder
03/03 at 12:00
Ulosottolaitos, Pohjois-Savon toimipaikat sells
€40,050
485 bids
03/03 at 12:00
03/03 at 13:00
Ulosottolaitos, Pohjois-Savon toimipaikat sells
€3,500
20 bids
03/03 at 13:00
03/03 at 13:00
Ulosottolaitos, Varsinais-Suomen toimipaikat sells
€41,000
26 bids
03/03 at 13:00
03/03 at 18:00
LN Capital Oy sells
€24,000
Starting price
03/03 at 18:00
To highest bidder
03/03 at 18:00
Ulosottolaitos, Helsingin toimipaikka sells
€20,000
20 bids
03/03 at 18:00
04/03 at 11:00
Ulosottolaitos, Länsi-Uudenmaan toimipaikat sells
€67,000
36 bids
04/03 at 11:00
04/03 at 12:00
Ulosottolaitos, Etelä-Pohjanmaan, Keski-Pohjanmaan ja Pohjanmaan toimipaikat sells
€1,000
2 bids
04/03 at 12:00
04/03 at 13:00
Ulosottolaitos, Varsinais-Suomen toimipaikat sells
€105,000
56 bids
04/03 at 13:00
04/03 at 14:00
Ulosottolaitos, Etelä-Savon toimipaikat sells
€2,000
8 bids
04/03 at 14:00
04/03 at 14:00
Kiekerö Land Oy sells
€265,000
2 bids
04/03 at 14:00
04/03 at 19:00
05/03 at 12:00
Ulosottolaitos, Etelä-Pohjanmaan, Keski-Pohjanmaan ja Pohjanmaan toimipaikat sells
€4,000
8 bids
05/03 at 12:00
05/03 at 13:00
Ulosottolaitos, Varsinais-Suomen toimipaikat sells
€50,500
51 bids
05/03 at 13:00
05/03 at 14:00
Ulosottolaitos, Etelä-Savon toimipaikat sells
€10,000
17 bids
05/03 at 14:00
05/03 at 18:55
Aurajoen Kiinteistönvälitys Oy sells
€25,000
Starting price
05/03 at 18:55
05/03 at 20:10
To highest bidder
06/03 at 18:00
LN Capital Oy sells
€19,000
Starting price
06/03 at 18:00
To highest bidder
08/03 at 17:00
Ulosottolaitos, Tampereen toimipaikka sells
€34,400
42 bids
08/03 at 17:00
08/03 at 18:00
Ulosottolaitos, Päijät-Häme / Kanta-Häme sells
€3,750
14 bids
08/03 at 18:00
22/03 at 19:00