Tänään klo 19.45
Liike-/asuinkiinteistö Hausjärvi, Hausjärvi
Jukka mäkeläinen Tmi myy
75 000 €
Lähtöhinta
Tänään klo 19.45
Eniten tarjoavalle
1,5
Katsottu 71 kertaa
Helsingin kaupunki myy tarjousten perusteella Helsingin Huopalahdessa sijaitsevan asuinrakennuksen katutasosta liiketilan. Rakennus on valmistunut 1991.
Perustiedot
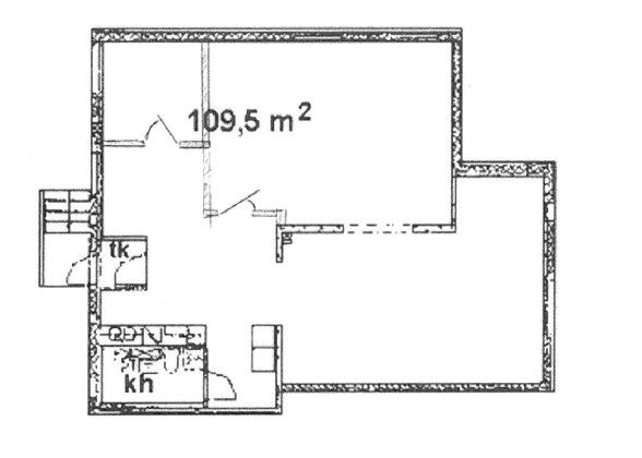
Pinta-ala 109,50 m². Pinta-alaa ei ole tarkistusmitattu, joten ne saattavat poiketa olennaisestikin nykymääräysten mukaan mitattavista pinta-aloista
Kerros 1 / Katutaso
Asunto-oy Reijolankallio
Huoneistoon kohdistuvan velkaosuuden suuruus on kirjattu isännöitsijäntodistukselle
Tilan kuvaus
Toimistotilasta löytyy 2 isoa ja avaraa tilaa, 1 pienempi huone, keittiö sekä WC-tila suihkulla
Huoneiston käyttötarkoitus on yhtiöjärjestyksessä määritetty toimistohuoneistoksi
Sijainti
Korppaanmäentie 36, Toimisto 3, 00300 Helsinki
Liiketila sijaitsee vuonna 1991 valmistuneen kerrostalon ensimmäisessä kerroksessa hyvien kulkuyhteyksien varrella aivan Vihdintien sekä raitiolinja 10 kääntöpaikan vieressä.
Tarkemmat tekniset ja yhtiötä koskevat tiedot ovat nähtävissä isännöitsijäntodistuksesta ja muista myyntiasiakirjoista.
Myyjä pidättää oikeuden hyväksyä tai hylätä korkein tarjous.
Kohde myydään käyttäjien välisenä kauppana. Huutokaupat.com ei toimi kaupan osapuolena.
Tarjoajat sitoutuvat siihen, että heidän yhteystietonsa voidaan luovuttaa Huutokaupat.comin toimesta ilmoittajalle myyntipäätöksen ja siitä tiedottamisen mahdollistamiseksi.
Myyntiehdot
Helsingin kaupunki, Kaupunkiympäristön toimiala pidättää oikeuden hyväksyä tai hylätä korkein tarjous. Mikäli korkeimman tarjouksen tekijä vetäytyy huudosta, Helsingin kaupunki voi harkita kohteen tarjoamista toiseksi korkeimman tarjouksen tekijälle tämän tarjoamasta korkeimmasta hinnasta.
Kohde myydään käyttäjien välisenä kauppana. Huutokaupat.com ei toimi kaupan osapuolena.
Kohde myydään siinä kunnossa ja niillä varusteilla kuin se ilmoituksessa ja kaupantekohetkellä on. Huutokauppaan osallistuvalla on velvollisuus itse tutustua myytävään kohteeseen ja asiakirjoihin ennen sitovan tarjouksen tekemistä. Ostaja ei voi jälkikäteen vedota sellaiseen seikkaan, joka olisi ennakkotarkastuksessa tai asiakirjoista voitu havaita. Tarjouksen jättämällä tarjouksen tekijä hyväksyy kohteen kunnon sellaisenaan.
Ostajalla ei ole vaihto- eikä palautusoikeutta. Kohteelle ei myönnetä takuuta. Ilmoituksen kuvaukset ovat ainoastaan myyjän arvioita myytävästä kohteesta.
Tarjoajat sitoutuvat siihen, että heidän yhteystietonsa voidaan luovuttaa Huutokaupat.comin toimesta ilmoittajalle myyntipäätöksen ja siitä tiedottamisen mahdollistamiseksi.
Kaupanteossa käytetään myyjän laatimaa kauppakirjaa. Omistus- ja hallintaoikeus kaupan kohteeseen siirtyvät ostajalle kauppakirjan allekirjoituksin. Kauppakirjan allekirjoittamis ajankohdasta sovitaan ostajan kanssa sen jälkeen, kun Helsingin kaupungin asiassa tekemä erillinen myyntipäätös on saanut lainvoiman (noin 21 vrk). Kauppahinta maksetaan viimeistään allekirjoitustilaisuudessa, jossa käytännössä esitetään kuitti kauppahinnan maksusta. Varainsiirtoverosta vastaa ostaja.
Tarjousaika
13.4.2026 – 9.6.2026
Tarjousaika alkaa 13.4.2026 ja päättyy 9.6.2026 klo 13.00 tai 3 minuuttia viimeisen hyväksytyn tarjouksen jälkeen. Tarjoukset (huudot) tehdään Huutokaupat.com-palvelussa annettuun ajankohtaan mennessä.
Huutokauppaan voi osallistua myös jättämällä myyjän edustajalle kirjallisen sitovan tarjouksen 4.6.2026 klo 10.00 mennessä. Kirjallisen tarjouksen jättämisestä tulee sopia etukäteen myyjän edustajan kanssa. Kaikki tarjoukset rekisteröidään julkisiksi kohteen ilmoitukseen. Kirjallinen ostotarjous on sitova ja sen osalta noudatetaan samoja ehtoja kuin nettihuutokaupassa. Ostajat sitoutuvat kirjaamaan kaikki tarjoukset järjestelmään.
Kirjallinen ostotarjous on allekirjoitettava ja tarjouksesta tulee ilmetä tarjouksen jättäjän yhteystiedot, tarjouksen enimmäismäärä sekä Huutokaupat.com -palvelun kohdenumero, johon tarjous jätetään.
Kaupunkiympäristön toimiala ei vastaa palveluntarjoajan järjestelmän toimivuudesta. Korkein tarjous on se tarjous, jonka palveluntarjoajan järjestelmä on korkeimpana hyväksynyt.
Nettihuutokauppaan jätetyt tarjoukset ovat sitovia. Mikäli tehty tarjous hyväksytään, on tarjouksen jättäjä velvollinen maksamaan tarjoamansa kauppahinnan sovitun maksuajan kuluessa.
Helsingin kaupunki, Kaupunkiympäristön toimiala pidättää oikeuden keskeyttää huutokauppa tai jatkaa myyntiaikaa.
Tarjoukset
Helsingin kaupunki, Kaupunkiympäristön toimiala pidättää itsellään oikeuden pyytää tarjouksen jättäneeltä lisätietoja ja täsmennyksiä sekä oikeuden hylätä kaikki tarjoukset. Ostajan valinnasta ilmoitetaan kaikille tarjouksen jättäneille.
Tarjouksen hyväksymisen ehdot
Tarjouksen hyväksyminen edellyttää, että ostajan luottotiedoissa ei ole häiriömerkintöjä ja että ostajaan, ostajan omistajatahoon tai ostajan määräysvaltaa käyttävään tahoon ei kohdistu Euroopan unionin tai YK:n asettamia pakotteita. Tekemällä tarjouksen ostaja vakuuttaa täyttävänsä edellä mainitut edellytykset.
Lopullinen tarjouksen hyväksyminen edellyttää myös Helsingin kaupungin toimivaltaisen viranhaltijan tai toimielimen tekemää erillistä myyntipäätöstä asiassa.
Kohteeseen tutustuminen
Kohde myydään siinä kunnossa ja niillä varusteilla kuin se ilmoituksessa ja kaupantekohetkellä on. Huutokauppaan osallistuvalla on velvollisuus itse tutustua myytävään kohteeseen ja asiakirjoihin ennen sitovan tarjouksen tekemistä. Ostaja ei voi jälkikäteen vedota sellaiseen seikkaan, joka olisi ennakkotarkastuksessa tai asiakirjoista voitu havaita. Tarjouksen jättämällä huutokauppaan osallistuva hyväksyy kohteen kunnon sellaisenaan.
Huudosta vetäytyminen
Mikäli huutaja vetäytyy hyväksytystä huudosta, tulee hänen korvata myyjälle epäonnistuneen huutokaupan järjestämisestä aiheutuneina kustannuksina 4 % hyväksytyn huudon mukaisesta kauppahinnasta.
Mikäli korkeimman tarjouksen tekijä vetäytyy huudosta ja Helsingin kaupunki tarjoaa kohdetta toiseksi korkeimman tarjouksen tekijälle, ja toiseksi korkeimman tarjouksen tekijä vetäytyy kaupasta myyntipäätöksen jälkeen, peritään häneltä peruutusmaksu, joka vastaa 4 % hyväksytyn huudon mukaisesta kauppahinnasta.
Kaupan solmiminen
Kauppahinta on suoritettava kokonaisuudessaan ja kauppakirja on allekirjoitettava kahden kuukauden kuluessa huutokaupan päättymisestä, ellei myyjän kanssa toisin sovita.
1,5
Aikaa jäljellä
Kohdenumero: 6209972
Katsottu 71 kertaa
22.5.2026 klo 10-11. Muutoin sopimuksen mukaan, teppo.luukkonen@hel.fi, 0505680621
Maksutapa sovitaan myyjän kanssa erikseen.
13.4.2026 klo 8.13
1,5
Tänään klo 19.45
Jukka mäkeläinen Tmi myy
75 000 €
Lähtöhinta
Tänään klo 19.45
Eniten tarjoavalle
15.4. klo 15.00
Osuuskunta Maitosuomi myy
32 000 €
Lähtöhinta
15.4. klo 15.00
16.4. klo 18.35
Commercia Mundi Oy myy
0 €
Lähtöhinta
16.4. klo 18.35
16.4. klo 18.45
16.4. klo 20.00
Asianajotoimisto Fenno myy
500 €
1 tarjous
16.4. klo 20.00
17.4. klo 21.00
Mänttä-Vilppulan kaupunki myy
3 250 €
Lähtöhinta
17.4. klo 21.00
19.4. klo 19.00
19.4. klo 20.20
OP Koti Etelä-Pohjanmaa Oy LKV myy
500 €
1 tarjous
19.4. klo 20.20
20.4. klo 18.20
Eniten tarjoavalle
20.4. klo 20.40
Una Casa LKV Oy myy
0 €
Lähtöhinta
20.4. klo 20.40
21.4. klo 18.30
Lapin Hyvinvointialue myy
85 000 €
25 tarjousta
21.4. klo 18.30
22.4. klo 18.00
Helsingin kaupunki, Kaupunkiympäristön toimiala myy
42 993 €
Lähtöhinta
22.4. klo 18.00
23.4. klo 19.05
Royal House Oy myy
10 000 €
1 tarjous
23.4. klo 19.05
24.4. klo 18.00
Keski-Suomen Kiinteistönvälitys, LKV myy
20 000 €
Lähtöhinta
24.4. klo 18.00
Eniten tarjoavalle
25.4. klo 20.00
25.4. klo 21.00
Kiinteistö Oy Viialan Nahkatehdas myy
20 000 €
Lähtöhinta
25.4. klo 21.00
Eniten tarjoavalle
26.4. klo 18.00
Kiinteistö Oy Viialan Nahkatehdas myy
20 000 €
Lähtöhinta
26.4. klo 18.00
Eniten tarjoavalle
26.4. klo 19.30
Suomen metsäkeskus – Finlands skogscentral myy
0 €
Lähtöhinta
26.4. klo 19.30
Eniten tarjoavalle
27.4. klo 12.00
OP Koti Varsinais-Suomi Oy LKV myy
150 000 €
Lähtöhinta
27.4. klo 12.00
28.4. klo 13.00
Ulosottolaitos, Rovaniemi realisointi (Rovaniemi, Kemi, Kuusamo) myy
0 €
Lähtöhinta
28.4. klo 13.00
24.4. klo 18.00
Op Koti Sisä-Suomi Oy LKV myy
50 000 €
Lähtöhinta
24.4. klo 18.00
28.4. klo 19.45
Realog Oy myy
15 000 €
Lähtöhinta
28.4. klo 19.45
18.5. klo 12.00
31.5. klo 23.00