Ulosmitattu rivitalo-osake Kaavilla, Pohjois-Savo, Utmätt radhus lägenhet i Kaavi, Kaavi
Ulosottolaitos, Pohjois-Savon toimipaikat myy
9 400 €
26 tarjousta
1 pv 4 t
Aikaa jäljellä
Katsottu 349 kertaa
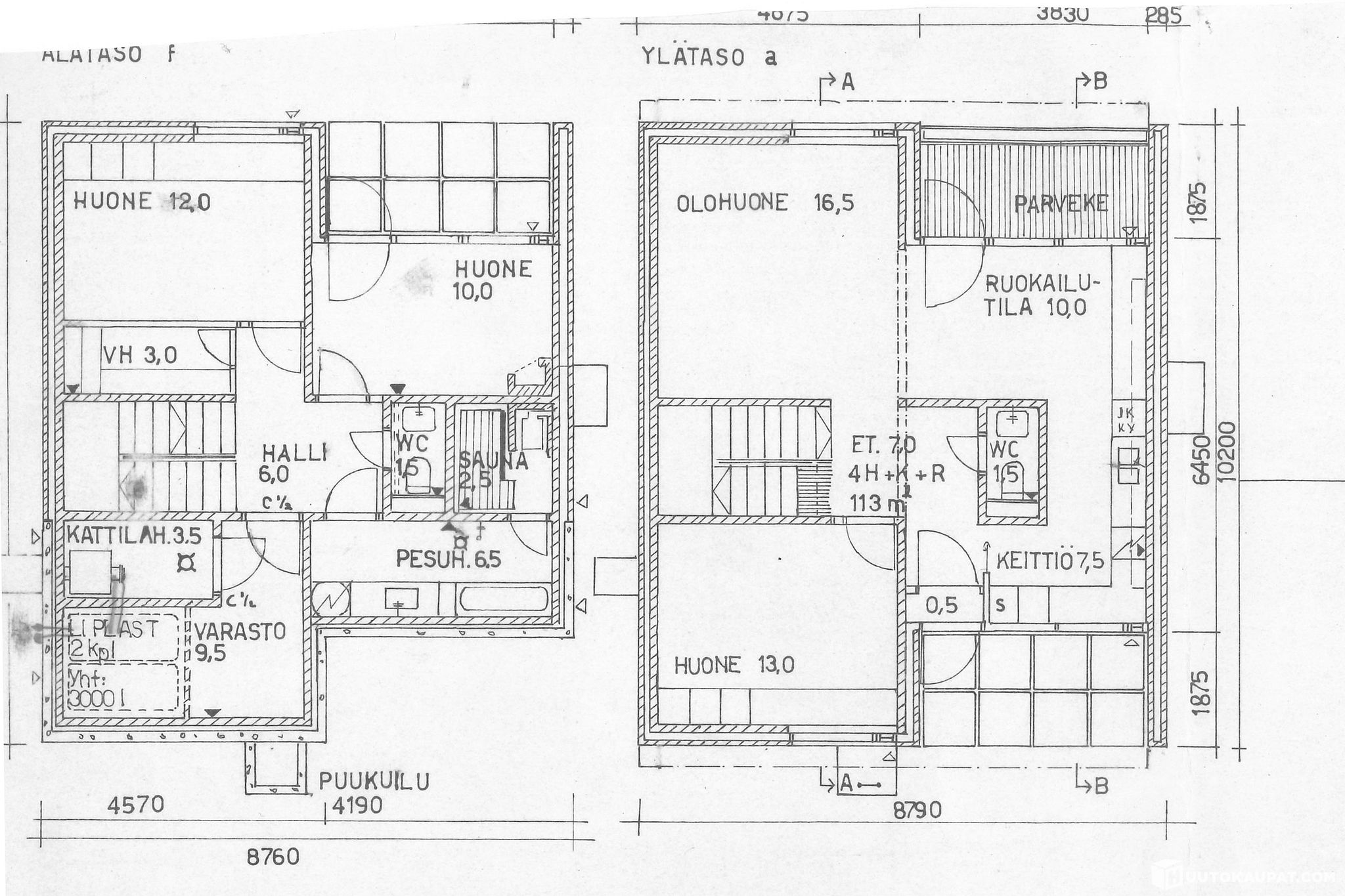
Syväsenvaaran rauhallisella asuinalueella Rovaniemellä, sijaitsee kahdessa kerroksessa oleva kuntotarkastettu omakotitalo. Talo rakennettu vuonna 1976. Siinä on neljä huonetta, sauna, keittiö, ruokailutila sekä kaksi wc:tä. Rakennuksen myynnin yhteydessä Rovaniemen kaupunki vuokraa tai myy tontin seuraavin ehdoin: perusvuokra 1539,62€/vuosi (ind.2332), tontin myyntihinta on 30 792,38 € (ind.2332).
Syväsenvaara on tunnettu rauhallisesta ja perheystävällisestä ympäristöstään ja alueelta löytyy hyvät peruspalvelut sekä erinomaiset ulkoilumahdollisuudet.
Huutokaupan lähtöhinta on 60 000 EUR. Huutokauppa päättyy huutokaupat.com -sivustolla 28.2.2026 klo 15.00 tai kolme minuuttia korkeimman tarjouksen jälkeen.
Rovaniemen kaupunki pidättää oikeuden hyväksyä tai hylätä korkein tarjous.
Lisätietoja antaa Sp-Koti Rovaniemi
Markus Torvinen
puh: 040 7055 043
markus.torvinen@spkoti.fi
Myyjä pidättää oikeuden hyväksyä tai hylätä korkein tarjous.
Kohde myydään käyttäjien välisenä kauppana. Huutokaupat.com ei toimi kaupan osapuolena.
Kiinteistönvälitys Rovaniemen Tähelliset LKV Oy pidättää oikeuden hyväksyä tai hylätä korkein tarjous. Kohde myydään käyttäjien välisenä kauppana. Huutokaupat.com ei toimi kaupan osapuolena.
Tarjoukset tehdään annettuun ajankohtaan mennessä.
Kohteeseen tutustuminen
Huutajalla on ennen tarjouksen tekemistä velvollisuus tutustua kyseiseen kiinteistöön, dokumentteihin ja asiakirjoihin. Ostaja ei jälkikäteen voi vedota sellaiseen seikkaan, joka olisi ennakkotarkastuksessa voitu havaita.
Myyjän antamat tiedot
Kiinteistönvälitys Rovaniemen Tähelliset LKV Oy vakuuttaa antaneensa ostajalle kaikki tiedot, jotka myyjä tietää ja joiden voidaan olettaa vaikuttavan kauppaan.
Kaupan solmiminen
Huudetusta kauppahinnasta huudon päätyttyä tulee suorittaa Sp-Kodin asiakasvaratilille 4% huudon vakuudeksi vuorokauden sisällä, joka palautetaan maksajalle mikäli myyntipäätöstä ei tehdä. Kiinteistön kauppa on tehtävä maakaaressa säädetyssä muodossa. Kauppakirjan allekirjoittamisajankohta ja paikka sovitaan ostajan kanssa erikseen. Kauppahinnan maksaminen tapahtuu kaupantekotilaisuudessa. Ostaja vastaa kaupanvahvistuskuluista.
Muut kustannukset
Ostaja vastaa kulloinkin voimassa olevan verokäytännön mukaisesta varainsiirtoverosta.
Kaupasta vetäytyminen
Osapuolen, joka kieltäytyy tekemästä kauppaa, on maakaaren perusteella korvattava toiselle osapuolelle ilmoittelusta, kiinteistöön tutustumisesta sekä muista kaupantekoon liittyvistä tarpeellisista toimista aiheutuneet, kohtuulliset kustannukset.
Aikaa jäljellä
Kohdenumero: 6054007
Katsottu 349 kertaa
Esittely ma 9.2 klo 12:00-12:30 ja la 28.2 klo 13.00-13:30
Maksutapa sovitaan myyjän kanssa erikseen.
30.1.2026 klo 11.42
Ulosottolaitos, Pohjois-Savon toimipaikat myy
9 400 €
26 tarjousta
1 pv 4 t
Aikaa jäljellä
Ulosottolaitos, Lappeenrannan toimipaikka myy
8 600 €
10 tarjousta
1 pv 9 t
Aikaa jäljellä
Ulosottolaitos, Porin toimipaikka myy
17 600 €
45 tarjousta
1 pv 9 t
Aikaa jäljellä
Ulosottolaitos, Jyväskylän toimipaikka myy
17 500 €
35 tarjousta
1 pv 9 t
Aikaa jäljellä
Petäjäveden Tähtiasunnot Oy myy
21 500 €
8 tarjousta
1 pv 11 t
Aikaa jäljellä
Asianajotoimisto Tuori, Kunvik & Lehesvuori Oy myy
1 700 €
8 tarjousta
1 pv 12 t
Aikaa jäljellä
Ulosottolaitos, Etelä-Pohjanmaan, Keski-Pohjanmaan ja Pohjanmaan toimipaikat myy
1 200 €
4 tarjousta
2 pv 3 t
Aikaa jäljellä
OP Koti Länsi-Suomi Oy myy
26 000 €
16 tarjousta
2 pv 10 t
Aikaa jäljellä
Ulosottolaitos, Lappeenrannan toimipaikka myy
4 100 €
17 tarjousta
2 pv 10 t
Aikaa jäljellä
Uniikki Toimitilat Oy myy
20 900 €
Lähtöhinta
2 pv 11 t
Aikaa jäljellä
Ulosottolaitos, Päijät-Häme / Kanta-Häme myy
1 400 €
7 tarjousta
3 pv 1 t
Aikaa jäljellä
Ulosottolaitos, Varsinais-Suomen toimipaikat myy
55 000 €
15 tarjousta
4 pv 4 t
Aikaa jäljellä
Ulosottolaitos, Etelä-Savon toimipaikat myy
2 222 €
2 tarjousta
4 pv 5 t
Aikaa jäljellä
Rooma Oy Kiinteistövälitys myy
10 000 €
20 tarjousta
4 pv 6 t
Aikaa jäljellä
Ulosottolaitos, Etelä-Savon toimipaikat myy
4 430 €
1 tarjous
4 pv 8 t
Aikaa jäljellä
Ulosottolaitos, Oulu realisointi (Oulu, Raahe, Kajaani) myy
10 200 €
34 tarjousta
4 pv 8 t
Aikaa jäljellä
Metsätilan sukupolvenvaihdos- ja veroneuvonta Esko Heikkinen myy
900 €
3 tarjousta
4 pv 9 t
Aikaa jäljellä
Ulosottolaitos, Kymenlaakson toimipaikat myy
31 000 €
19 tarjousta
5 pv 2 t
Aikaa jäljellä
Ulosottolaitos, Tampereen toimipaikka myy
1 000 €
2 tarjousta
5 pv 4 t
Aikaa jäljellä
Ulosottolaitos, Tampereen toimipaikka myy
10 500 €
21 tarjousta
5 pv 4 t
Aikaa jäljellä
Rena Homes Oy myy
59 000 €
Lähtöhinta
5 pv 10 t
Aikaa jäljellä
Rena Homes Oy myy
49 000 €
Lähtöhinta
5 pv 11 t
Aikaa jäljellä
Ulosottolaitos, Itä- ja Keski-Uudenmaan toimipaikat myy
4 150 €
6 tarjousta
14 pv 10 t
Aikaa jäljellä
KOY Rantasalmen Teollisuustilat myy
200 €
2 tarjousta
16 pv 11 t
Aikaa jäljellä
Ulosottolaitos, Oulu realisointi (Oulu, Raahe, Kajaani) myy
300 €
3 tarjousta
17 pv 9 t
Aikaa jäljellä
Ulosottolaitos, Joensuun toimipaikka myy
10 000 €
1 tarjous
19 pv 4 t
Aikaa jäljellä
Ulosottolaitos, Pohjois-Savon toimipaikat myy
1 050 €
2 tarjousta
19 pv 4 t
Aikaa jäljellä
Ulosottolaitos, Varsinais-Suomen toimipaikat myy
3 000 €
6 tarjousta
19 pv 4 t
Aikaa jäljellä
Ulosottolaitos, Rovaniemi realisointi (Rovaniemi, Kemi, Kuusamo) myy
100 €
1 tarjous
19 pv 7 t
Aikaa jäljellä
Ulosottolaitos, Rovaniemi realisointi (Rovaniemi, Kemi, Kuusamo) myy
200 €
2 tarjousta
19 pv 9 t
Aikaa jäljellä
Ulosottolaitos, Varsinais-Suomen toimipaikat myy
5 405 €
5 tarjousta
19 pv 9 t
Aikaa jäljellä
Ulosottolaitos, Varsinais-Suomen toimipaikat myy
16 500 €
6 tarjousta
19 pv 9 t
Aikaa jäljellä
Indinet Oy myy
50 €
1 tarjous
19 pv 11 t
Aikaa jäljellä
Ulosottolaitos, Pohjois-Savon toimipaikat myy
400 €
4 tarjousta
22 pv 4 t
Aikaa jäljellä
Neo Homes myy
0 €
Lähtöhinta
22 pv 11 t
Aikaa jäljellä
Ulosottolaitos, Kymenlaakson toimipaikat myy
0 €
Lähtöhinta
25 pv 9 t
Aikaa jäljellä
Ulosottolaitos, Kymenlaakson toimipaikat myy
1 000 €
2 tarjousta
25 pv 9 t
Aikaa jäljellä
Ulosottolaitos, Varsinais-Suomen toimipaikat myy
20 000 €
7 tarjousta
26 pv 4 t
Aikaa jäljellä
Ulosottolaitos, Päijät-Häme / Kanta-Häme myy
0 €
Lähtöhinta
29 pv 9 t
Aikaa jäljellä