Omakotitalo, 5h 90 m², 1899, Kauhava
Amaks company / Luxuskodit LKV myy
5 000 €
17 tarjousta
19 t 28 min
Aikaa jäljellä
LLS Invest Oy myy
Katsottu 32 kertaa
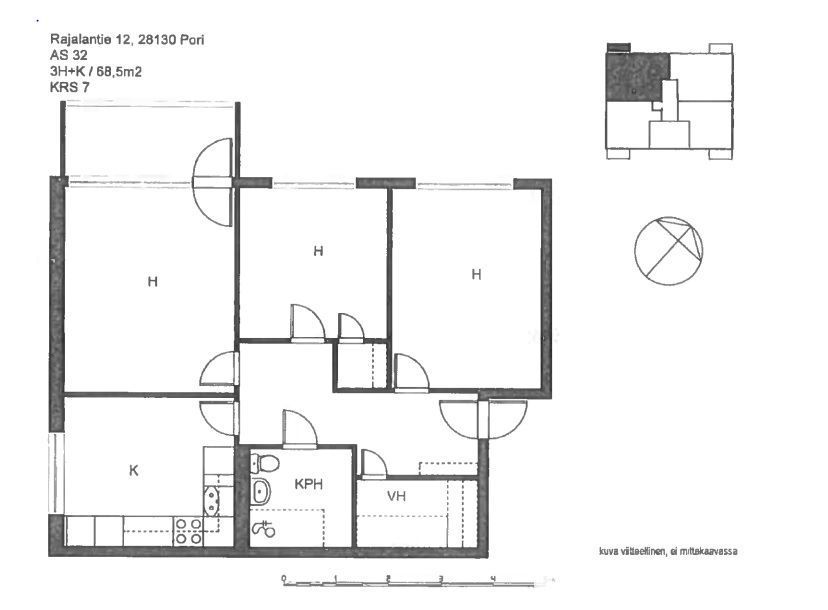
Myydään tilava ja valoisa kolmio Porissa. Asunto sijaitsee kerrostalon ylimmässä kerroksessa ja siinä on toimiva pohjaratkaisu sekä lasitettu parveke. Sijainti tarjoaa hyvät kulkuyhteydet palveluihin ja keskustaan.
Huoneisto soveltuu hyvin omaan asumiseen tai sijoittajalle. Asunto on tällä hetkellä tyhjä ja loppusiivous on suoritettu, joten se on heti käyttöönotettavissa tai vuokrattavissa.
Asunto soveltuu vuokraukseen. Esimerkiksi noin 595 € / kk vuokralla vuokra on markkinatasolla, eikä kohteesta muodostu negatiivista kassavirtaa yhtiövastikkeet huomioiden.
Kuvissa oleva liesi on vaihdettu uuteen keväällä 2025. Osake on sähköisessä huoneistotietojärjestelmässä.
Perustiedot
Talotyyppi: kerrostalo
Huoneita: 3h
Asuinpinta-ala: 68,5 m²
Rakennusvuosi: 1973
Vastikkeet
Hoitovastike: 301,40 € / kk
Rahoitusvastike: 293,18 € / kk
Yhtiövastike yhteensä: 594,58 € / kk
Yhtiölaina
Huoneistoon kohdistuva velkaosuus: 24 108,52 € (per 31.12.2025)
Ostaja ottaa velkaosuuden vastattavakseen.
Muita velkoja ei siirry ostajalle kuin tässä ilmoituksessa erikseen mainittu velkaosuus 24 108,52 €.
Myyjä sitoutuu myymään kohteen korkeimman tarjouksen tekijälle.
Kohde myydään käyttäjien välisenä kauppana. Huutokaupat.com ei toimi kaupan osapuolena.
Tarjoukset tehdään myyntihinnasta ylöspäin.
Asunnon ostaja ottaa 24 108,52 € suuruisen huoneiston velkaosuuden vastatakseen.
Korkeimman tarjouksen tehneen henkilön on tarjouksen hyväksymisen jälkeen maksettava käsiraha 2 000 € kahden (2) vuorokauden sisällä.
LLS Invest Oy sitoutuu myymään kohteen korkeimman tarjouksen tekijälle.
Kohde myydään käytettynä huoneistona. Huutokaupat.com toimii ainoastaan markkinapaikkana eikä ole kaupan osapuoli.
Tarjoukset tehdään myyntihinnasta. Ostaja ottaa vastattavakseen huoneistoon kohdistuvan yhtiölainaosuuden 24 108,52 € (per 31.12.2025).
Tarjoukset ovat sitovia. Korkeimman tarjouksen hyväksymisen jälkeen kauppakirja allekirjoitetaan sähköisesti, ja kauppahinta maksetaan kauppakirjan allekirjoituksen yhteydessä, ellei toisin erikseen sovita.
Omistus- ja hallintaoikeus siirtyvät ostajalle kaupanteon yhteydessä. Huutokaupan voittaja vastaa yhtiövastikkeen maksamisesta taloyhtiölle tammikuusta 2026 alkaen.
Kohteeseen tutustuminen
Tarjouksen tekijä on velvollinen tutustumaan kohteeseen, huoneistoon ja sitä koskeviin asiakirjoihin ennen tarjouksen tekemistä. Tarjouksen tekijä ei voi myöhemmin vedota seikkaan, joka olisi ollut ennakkotarkastuksessa havaittavissa.
Myyjän antamat tiedot
LLS Invest Oy vastaa antamiensa tietojen oikeellisuudesta ja ajantasaisuudesta niiden tietojen perusteella, jotka ovat myyjän käytettävissä ja joilla voidaan olettaa olevan vaikutusta kauppaan.
Kaupan tekeminen
Kauppakirja allekirjoitetaan sähköisesti ostajan ja myyjän kesken sovittuna ajankohtana. Kauppahinta maksetaan kauppakirjan allekirjoituksen yhteydessä.
Muut kustannukset
Ostaja vastaa varainsiirtoverosta voimassa olevan lainsäädännön mukaisesti sekä mahdollisista pankkien ja isännöinnin perimistä kuluista.
Kaupasta vetäytyminen
Mikäli huutokaupan voittaja perääntyy kaupasta hyväksytyn tarjouksen jälkeen tai aiheuttaa sen, ettei kauppa synny, on hän velvollinen suorittamaan LLS Invest Oy:lle sopimussakkona 5 % voittavan huudon mukaisesta kauppahinnasta, ja maksamaton sopimussakko voidaan siirtää perittäväksi perintälain mukaisin keinoin ja tarvittaessa ulosottoon lainvoimaisen täytäntöönpanoperusteen perusteella.
Aikaa jäljellä
Kohdenumero: 5980412
Katsottu 32 kertaa
Sopimuksen mukaan, soita 0300472286
Maksutapa sovitaan myyjän kanssa erikseen.
26.12.2025 klo 19.15
Amaks company / Luxuskodit LKV myy
5 000 €
17 tarjousta
19 t 28 min
Aikaa jäljellä
Kompassikodit Oy myy
17 000 €
Lähtöhinta
21 t 58 min
Aikaa jäljellä
LN Capital Oy myy
19 000 €
Lähtöhinta
1 pv 16 t
Aikaa jäljellä
Asianajotoimisto Advokatura Ky myy
2 200 €
11 tarjousta
1 pv 17 t
Aikaa jäljellä
Ulosottolaitos, Lappeenrannan toimipaikka myy
18 000 €
27 tarjousta
1 pv 18 t
Aikaa jäljellä
Savon Asuntomarkkinat Oy myy
301 €
4 tarjousta
1 pv 20 t
Aikaa jäljellä
LN Capital Oy myy
14 000 €
Lähtöhinta
2 pv 16 t
Aikaa jäljellä
Ulosottolaitos, Lappeenrannan toimipaikka myy
2 700 €
9 tarjousta
2 pv 18 t
Aikaa jäljellä
Ulosottolaitos, Rovaniemi realisointi (Rovaniemi, Kemi, Kuusamo) myy
67 990 €
84 tarjousta
3 pv 18 t
Aikaa jäljellä
Kiinteistönvälitys Rovaniemen Tähelliset LKV Oy myy
20 300 €
7 tarjousta
10 pv 12 t
Aikaa jäljellä
Ulosottolaitos, Pohjois-Savon toimipaikat myy
1 200 €
6 tarjousta
10 pv 12 t
Aikaa jäljellä
Ulosottolaitos, Joensuun toimipaikka myy
2 100 €
21 tarjousta
11 pv 13 t
Aikaa jäljellä
Ulosottolaitos, Pohjois-Savon toimipaikat myy
350 €
7 tarjousta
11 pv 13 t
Aikaa jäljellä
Kurikan Toimitilat Oy myy
2 000 €
4 tarjousta
11 pv 19 t
Aikaa jäljellä
Ulosottolaitos, Pohjois-Savon toimipaikat myy
5 010 €
21 tarjousta
12 pv 13 t
Aikaa jäljellä
Ulosottolaitos, Pohjois-Savon toimipaikat myy
250 €
3 tarjousta
12 pv 13 t
Aikaa jäljellä
Ulosottolaitos, Varsinais-Suomen toimipaikat myy
20 500 €
30 tarjousta
12 pv 14 t
Aikaa jäljellä
Sotkamon Lakipalvelu Oy myy
300 €
3 tarjousta
13 pv 18 t
Aikaa jäljellä
Jukka S. Lahtinen Ky myy
2 500 €
5 tarjousta
13 pv 18 t
Aikaa jäljellä
T:MI Tino Ahonpää myy
11 000 €
1 tarjous
13 pv 21 t
Aikaa jäljellä
Ulosottolaitos, Varsinais-Suomen toimipaikat myy
5 000 €
1 tarjous
20 pv 13 t
Aikaa jäljellä
Jopvest Oy myy
37 900 €
Lähtöhinta
20 pv 20 t
Aikaa jäljellä