Rantatontti/metsätila rakennuksilla livojoen varrella, Pudasjärvi
Miikka Paasikivi myy
8 500 €
34 tarjousta
17 pv 18 t
Aikaa jäljellä
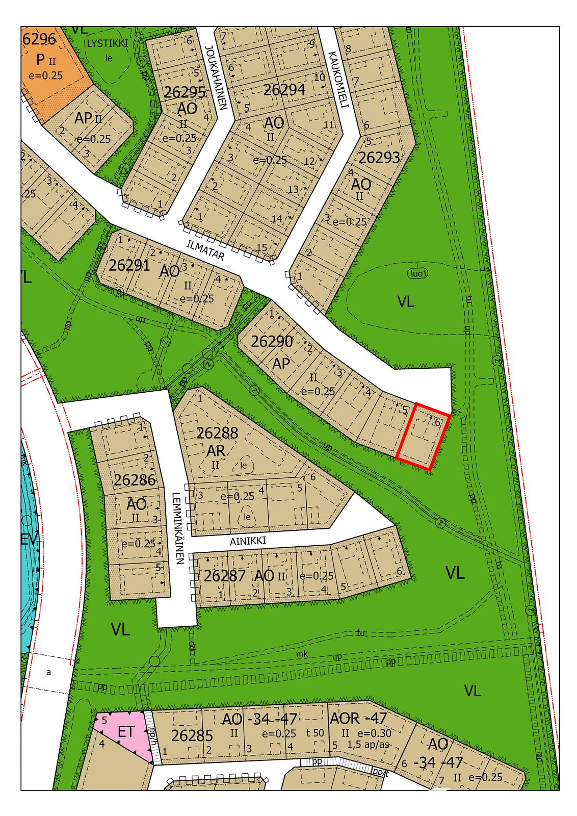
Paritalotontti Linnakankaalla loistavien liikenneyhteyksien äärellä, Ilmatar 38, Kempele

Paritalotontti Linnakankaalla loistavien liikenneyhteyksien äärellä, Ilmatar 38, Kempele
Kiinnostavimmat
GMC Manhattan matkailuauto 159000km Diesel upea, Asikkala
Ulosmitattu omakotitalo Sinilähteellä, Heinola
KORJAAMORAKENNUS PIHA-ALUEINEEN JA RANTASAUNA 3 ha, Juva
JCB 803 Plus, 1999, Iisalmi
Effer 165 nosturi ja kaupanpäälle Sisu SK200 kuorma-auto, Kouvola
Yli 600 tölkkiä RedBull -juomia. HBB1247. Restaurations Kompagniet Finland Oy (Heidi´s Bier Bar) konkurssipesä 3535417-5, Helsinki
Miikka Paasikivi myy
8 500 €
34 tarjousta
17 pv 18 t
Aikaa jäljellä
Asianajotoimisto Antti Kallio Ky myy
109 000 €
6 tarjousta
11 pv 15 t
Aikaa jäljellä
Ulosottolaitos, Porin toimipaikka myy
50 500 €
24 tarjousta
28 pv 15 t
Aikaa jäljellä
Applex Asianajotoimisto Oy myy
1 313 €
3 tarjousta
28 pv 16 t
Aikaa jäljellä
Elisa Oyj myy
30 201 €
126 tarjousta
11 pv 13 t
Aikaa jäljellä
Huittisten kaupunki myy
700 €
4 tarjousta
53 pv 18 t
Aikaa jäljellä
Heinolan kaupunki myy
150 000 €
Lähtöhinta
39 pv 17 t
Aikaa jäljellä
Lapin metsäkiinteistöt OY LKV myy
5 500 €
26 tarjousta
12 pv 15 t
Aikaa jäljellä