Uusi kerrostaloyksiö, 30 m², 2024, Herttoniemi, Helsinki
Ekman Capital Oy myy
35 900 €
Lähtöhinta
19 t 3 min
Aikaa jäljellä
Katsottu 31 598 kertaa
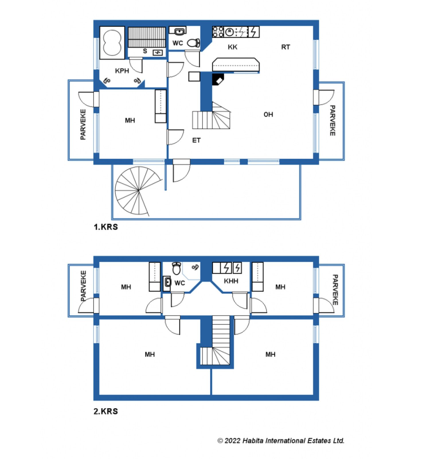
Loistavalla sijainnilla harvoin tarjolla oleva alppitalon kattohuoneisto rinnenäkymällä. Huoneistossa on viisi makuuhuonetta tarjoten makuusijan 11 hengelle. Alakerrassa on tilava tupakeittiö, makuuhuone, kylpyhuone porealtaalla, sauna ja erillinen wc. Yläkerrassa on neljä makuuhuonetta, erillinen wc ja kodinhoitohuone. Lisäksi käytössä on huoneistokohtainen kellarikomero. Huoneistoon on vaihdettu vuonna 2021 uudet kalusteet pois lukien sängyt, uusi jääkaappi sekä tehtiin saunaremontti. Huoneisto myydään valmiiksi kalustettuna ja varusteltuna.
Perustiedot
Asuintilojen pinta-ala:122 m²
Asuintilat luettelona: 5mh,oh,kk,kph,s,2wc,et,aula,khh.
Huoneet: 6
Makuuhuoneet: 5
Kylpyhuoneet: 2
WC:t: 2
Muut tilat luettelona: Väestönsuoja / kellarikomerot.
Tarkistusmitattu: Ei
Pinta-alan peruste: Yhtiöjärjestys
Kerros: 2
Huoneiston kerrosten määrä: 2
Yleiskunto: Hyvä
Pysäköinti: Parkkipaikka sähköpistokkeella
Ylin kerros: Kyllä
Vapaa-ajan asunto: Kyllä
Talotyyppi: luhtitalo
Ominaisuudet: Kalustettu, Triplaikkunat, Lämmöntalteenotto, Takka, LämminvesivaraajaMuuta: kohde myydään kalustettuna
Tilat: Sauna: Sähkökiuas.
Näkymät: Naapurusto, Luonto
Säilytystilat: Kaapisto, Kellarikomero
Teleliikenneyhteydet: Kaapelitelevisio
Lattian pintamateriaalit: Laminaatti, Laatta
Seinien pintamateriaalit: Tapetti, Maali
Kylpyhuoneen pintamateriaalit: Laatta
Keittiön varustus: Keraaminen liesi, Jääkaappipakastin, Kaapisto, Liesituuletin, Astianpesukone, Mikroaaltouuni
Kylpyhuoneen varustus: Suihku, Mukavuuslattialämmitys, Poreallas
Kodinhoitohuoneen varustus: Pesukoneliitäntä, Kuivauskaappi, Pesukone
Osakenumerot: 85-96
Muuta: kohde myydään vuokrattuna
Vapautuminen: viimeistään 2.5.2022
Rakennuksen ja kiinteistön tiedot
Käyttöönotto: 2006
Kerroksia: 2
Hissi: Ei
Kattotyyppi: Harjakatto
Ilmanvaihto: Koneellinen
Perustukset: Betoni
Energiatodistuksen luokka: Laki ei edellytä energiatodistusta
Lämmitysmuoto: Sähkölämmitys, Uuni- tai takkalämmitys, Lattialämmitys
Rakennusmateriaalit: Puu, Betoni
Kattomateriaalit: Huopa
Julkisivun materiaalit: Puu, Rappaus, Kivi
Remontit: Ikkunat 2023 (Tulossa), Ikkunapokien ja ristikoiden tarkastukset ja mahdolliset huoltomaalaukset 2023-2024. Ei kustannusarviota.
Ulko-ovet 2022 (Tulossa), Parveke-ovien tarkistukset ja mahdolliset kunnostukset 2021-2022. Ei kustannusarviota.
Ilmanvaihto 2022 (Tulossa), Ilmastoinnin nuohous, säätö ja pöytäkirjat.
Muu 2022 (Tulossa), Jätekeräyksen uudistaminen. Ei kustannusarviota.
Parvekkeet 2022 (Tulossa), Parvekekaiteiden tarkastukset ja mahdolliset kunnostukset 2022-2023. Ei kustannusarviota
Katto 2019 (Tehty), Katon PTS-tarkastus ja tarvittavat korjaukset.
Sähköt 2019 (Tehty), Määräaikaistarkastukset ja tarvittavat korjaukset.
Julkisivu 2017 (Tehty), Ulkovuoren huoltomaalaus.
Muu 2016 (Tehty), Paloilmaisimien uusiminen.
Ikkunat 2014 (Tehty), Yläkerran ullakkohuoneiden ikkunoiden vaihto.
Porraskäytävä 2013 (Tehty), Portaikoiden ja parvekkeiden huoltomaalaus.
Muu 2012 (Tehty), Syväkeräysastian asennus.
Yleiset tilat: Ulkoiluvälinevarasto, Väestönsuoja
Kiinteistötunnus: 261-409-33-6
Isännöitsijä: OP Pohjoinen Isännöinti, Kati HolmströmI. Isännöitsijän yhteystiedot 0405563355
Huolto: Huoltoyhtiö
Tontin pinta-ala: 2270 m²
Parkkipaikkoja: 14
Rakennuksia: 2
Maasto:Tasainen
Tie: Kyllä
Tontin omistajuus: Oma
Kaavoitustilanne: Asemakaava.
Levin korttelin 49 asemakaavamuutos, lisätietoja Kittilän kunta 0400356500
Liittymät: Vesi, Viemäri, Sähkö
Yhtiön tiedot
Perustamisvuosi: 2005
Osakkeiden lukumäärä: 96
Huoneistojen lkm: 14
Huoneistojen pinta-ala: 948 m²
Lunastusoikeus: Ei
Maksut
Vesi: 25,6 € / kuukausi vesiennakko.
Sähkö: 3 000 € / vuosi (arvio) 20.000kWh/v.
Muu: IV-nuohouksen kustannusarvio kokonaisuudessaan 625 €.
Palvelut
Laskettelu: 0.4 km
Golf: 4 km
Ravintola: 0.1 km
Liikenneyhteydet
Lentokenttä:14 km
Kaupan laillistamiskustannukset
Varainsiirtovero: 2 %
Tietoa Levistä
Levillä on 43 lasketteluun tarkoitettua rinnettä, joista 17 on valaistu. Suurimman rinteen korkeusero on 325 metriä. Pisimmän rinteen pituus on 2500 metriä. Hiihtohissejä on 27 ja pisimmän hissin pituus noin 1710 metriä. Levillä on yhteensä 230 kilometriä maastohiihtoon tarkoitettuja hiihtolatuja, yli 20 kilometriä talvikävelyreittejä ja jopa 886 kilometriä moottorikelkkareittejä. Levillä voi myös harrastaa koiravaljakkoajelua sekä ratsastusta islanninhevosilla ja suomenhevosilla.
Kesäisin Levillä voi harrastaa mm. kalastusta, patikointia, pyöräilyä, ratsastusta, melontaa, golfia ja sukellusta. Levin golfkenttä on EU:n pohjoisin täysimittainen golfkenttä. Kesäkuussa 2006 Levillä avattiin maastopyöräilypuisto Levi Bike Park. Levi Bike Park on sittemmin laajentanut reitistöään sisältäen 12 alamäki- tai enduropyöräreittiä, sekä kaksi auki olevaa gondolihissiä. Pyöräilykausi kestää yleensä juhannuksesta lokakuun alkuun. Alamäkipyöräilyyn parkista löytyy yksi vihreä reitti, Village Trail (4,2 km), joka on Suomen pisimpiä alamäkireittejä. Sininen reitti, Blue Groove, jolla myös on pituutta 3,5 km. Parkista löytyy lisäksi kaksi punaista reittiä, World Cup Red sekä heinäkuussa 2021 aukaistu Santa’s Cabin. Levi Bike Parkista löytyy myös yksi musta alamäkireitti World Cup Black. Loput reitistöstä koostuu enduroreiteistä tunturissa.
Levillä on myös kaksi keilahallia, elämyskylpylä ja erilaista toimintaa ympäri vuoden. Levillä toimii useita wellness-palveluja sekä yli 50 ohjelmapalveluyritystä kuumailmapallolennätyksestä safareihin. Koska Levillä on hiihtolajien ohella paljon muitakin harrastusmahdollisuuksia, päätettiin talvikaudelle 2015-2016 järjestää Se toinen Levi -niminen kampanja. Lähde: Wikipedia
Näytöt ja lisätiedot
Kohteeseen on mahdollista tutustua paikan päällä seuraavina ajankohtina:
19.3-21.3.
27.3 klo 14-16
2.4 klo 14.16
Tuomas Nilimaa
Kiinteistönvälittäjä, LKV
050 4200 789
Pohjois-Suomen Habita Oy
Skimbaajankuja 7
99130 Sirkka
Myyjä pidättää oikeuden hyväksyä tai hylätä korkein tarjous.
Kohde myydään käyttäjien välisenä kauppana. Huutokaupat.com ei toimi kaupan osapuolena.
Kohteesta ei makseta käsirahaa
Tarjoukset tehdään annettuun ajankohtaan mennessä. Korkein tarjous on se tarjous, jonka myyjä on korkeimpana hyväksynyt. Huutokauppaan voi osallistua myös henkilökohtaisesti paikan päällä jättämällä myyjälle tarjouksen. Pohjois-Suomen Habita Oy ja ostaja sitoutuvat kirjaamaan kaikki tarjoukset järjestelmään. Tarjouksen tehnyt hyväksyy nämä myyntiehdot suorittaessaan huudon.
Kohteeseen tutustuminen
Huutajalla on ennen tarjouksen tekemistä velvollisuus tutustua kyseiseen huoneistoon, yhtiötä koskeviin dokumentteihin ja asiakirjoihin. Ostaja ei jälkikäteen voi vedota sellaiseen seikkaan, joka olisi ennakkotarkastuksessa voitu havaita.
Kohteeseen on mahdollista tutustua paikan päällä seuraavina ajankohtina:
27.3 klo 14-16
2.4 klo 14.16
Myyjän antamat tiedot
Pohjois-Suomen Habita Oy vastaa kohteeseen liittyvien asiakirjojen oikeellisuudesta ja ajantasaisuudesta. Pohjois-Suomen Habita Oy vakuuttaa antaneensa ostajalle kaikki tiedot, jotka myyjä tietää ja joiden voidaan olettaa vaikuttavan kauppaan.
Kaupan solmiminen
Ostajan tulee tehdä huutokaupan päätyttyä kirjallinen ostotarjous välitysliikkeen avustuksella. Kauppakirjan allekirjoittamisajankohta ja paikka sovitaan ostajan kanssa erikseen. Kauppahinnan maksaminen ja osakesiirto tapahtuvat kaupantekotilaisuudessa.
Muut kustannukset
Ostaja vastaa varainsiirtoverosta, joka on 2 % velattomasta kauppahinnasta.
Kaupasta vetäytyminen
Mikäli huutaja vetäytyy hyväksytystä tarjouksesta, tulee hänen korvata myyjälle epäonnistuneen huutokaupan järjestämisestä aiheutuneina kustannuksina 4 % kauppahinnasta.
Huutokauppa päättyi 6.4.2022 klo 20.38
MyytyEi tarjouksia
Lähtöhinta 0 €
Ei vähennettävää arvonlisäveroa
Huutokauppa päättyy ke 06.04.2022 klo 20.38, tai 3 min viimeisen tarjouksen jälkeen
Kohdenumero: 3357751
Katsottu 31 598 kertaa
Sopimuksen mukaan / Tuomas Nilimaa +358 504200789
Maksutapa sovitaan myyjän kanssa erikseen.
16.3.2022 klo 11.42
Ekman Capital Oy myy
35 900 €
Lähtöhinta
19 t 3 min
Aikaa jäljellä
Amaks company / Luxuskodit LKV myy
1 200 €
16 tarjousta
1 pv 17 t
Aikaa jäljellä
Kompassikodit Oy myy
17 000 €
Lähtöhinta
1 pv 19 t
Aikaa jäljellä
Asianajotoimisto Advokatura Ky myy
2 000 €
10 tarjousta
2 pv 15 t
Aikaa jäljellä
Ulosottolaitos, Lappeenrannan toimipaikka myy
15 600 €
26 tarjousta
2 pv 16 t
Aikaa jäljellä
Savon Asuntomarkkinat Oy myy
226 €
3 tarjousta
2 pv 18 t
Aikaa jäljellä
Ulosottolaitos, Lappeenrannan toimipaikka myy
2 400 €
8 tarjousta
3 pv 16 t
Aikaa jäljellä
Ulosottolaitos, Rovaniemi realisointi (Rovaniemi, Kemi, Kuusamo) myy
67 990 €
84 tarjousta
4 pv 16 t
Aikaa jäljellä
Kiinteistönvälitys Rovaniemen Tähelliset LKV Oy myy
20 300 €
7 tarjousta
11 pv 10 t
Aikaa jäljellä
Ulosottolaitos, Pohjois-Savon toimipaikat myy
1 200 €
6 tarjousta
11 pv 10 t
Aikaa jäljellä
Ulosottolaitos, Joensuun toimipaikka myy
2 100 €
21 tarjousta
12 pv 11 t
Aikaa jäljellä
Ulosottolaitos, Pohjois-Savon toimipaikat myy
350 €
7 tarjousta
12 pv 11 t
Aikaa jäljellä
Kurikan Toimitilat Oy myy
2 000 €
4 tarjousta
12 pv 17 t
Aikaa jäljellä
Ulosottolaitos, Pohjois-Savon toimipaikat myy
5 010 €
21 tarjousta
13 pv 11 t
Aikaa jäljellä
Ulosottolaitos, Pohjois-Savon toimipaikat myy
250 €
3 tarjousta
13 pv 11 t
Aikaa jäljellä
Ulosottolaitos, Varsinais-Suomen toimipaikat myy
20 500 €
30 tarjousta
13 pv 12 t
Aikaa jäljellä
Sotkamon Lakipalvelu Oy myy
300 €
3 tarjousta
14 pv 16 t
Aikaa jäljellä
Jukka S. Lahtinen Ky myy
2 500 €
5 tarjousta
14 pv 16 t
Aikaa jäljellä
T:MI Tino Ahonpää myy
11 000 €
1 tarjous
14 pv 18 t
Aikaa jäljellä
Huoneistokeskus Oy myy
10 400 €
26 tarjousta
15 pv 18 t
Aikaa jäljellä
Investointipesä Oy myy
19 800 €
Lähtöhinta
2 pv 18 t
Aikaa jäljellä
Ulosottolaitos, Länsi-Uudenmaan toimipaikat myy
2 100 €
4 tarjousta
17 pv 9 t
Aikaa jäljellä
Ulosottolaitos, Länsi-Uudenmaan toimipaikat myy
0 €
Lähtöhinta
18 pv 9 t
Aikaa jäljellä
Ulosottolaitos, Länsi-Uudenmaan toimipaikat myy
1 500 €
3 tarjousta
18 pv 10 t
Aikaa jäljellä
Ulosottolaitos, Varsinais-Suomen toimipaikat myy
0 €
Lähtöhinta
21 pv 11 t
Aikaa jäljellä
Ulosottolaitos, Lappeenrannan toimipaikka myy
0 €
Lähtöhinta
23 pv 16 t
Aikaa jäljellä
Ulosottolaitos, Porin toimipaikka myy
2 500 €
5 tarjousta
23 pv 16 t
Aikaa jäljellä
Ulosottolaitos, Tampereen toimipaikka myy
300 €
3 tarjousta
24 pv 11 t
Aikaa jäljellä
Ulosottolaitos, Pohjois-Savon toimipaikat myy
0 €
Lähtöhinta
28 pv 11 t
Aikaa jäljellä
Aurajoen Kiinteistönvälitys Oy myy
25 000 €
Lähtöhinta
28 pv 16 t
Aikaa jäljellä