5
Underground parking space in Hervanta, Tieteenkatu 15, Tampere
Viewed 78 times
For Sale
- Velkaosuus
- 12 912,47 €
Please note that this is an automatic translation. In case of any discrepancies between the original and this translated version, the original version shall prevail.
Are you looking for a parking space for yourself, or would you be interested in buying it as an investment and renting it to local residents or people who work nearby?
The car park is located in the basement of a residential block, with vehicle access from Tutkijankatu. Pedestrian access to the parking space is from the Latsarus Park side.
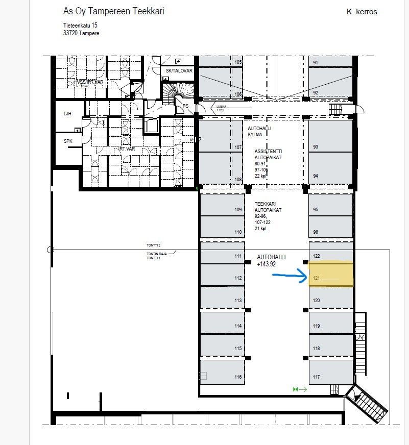
The parking space for sale is number AH 121.
The space has a heating socket; there is no electric or hybrid car charging facility.
The parking space is sold as part of the share series of Asunto Oy Tampereen Teekkari.
Terms of Sale
The seller reserves the right to accept or reject the highest bid.
The item is sold as a transaction between users. Huutokaupat.com does not act as a party to the transaction.
The buyer assumes responsibility for a debt share of 12 912,47 €.
Offers must be submitted by the stated deadline. The highest offer is the one the seller has accepted as the highest. The seller and buyer undertake to record all offers in the system. The bidder accepts these terms when placing a bid.
Viewing the property
The bidder is obliged, before making an offer, to inspect the parking space, documents and papers. The buyer may not afterwards claim a matter that could have been observed during the preliminary inspection.
The parking spaces are shown by YIT housing sales tel. 020 433 4635, asuntomyynti.tampere@yit.fi.
Information provided by the seller
The seller certifies that they have given the buyer all information known to the seller and that could be assumed to affect the transaction.
Conclusion of the sale
The purchase price must be paid in full at the signing of the sale.
Ownership and possession of the parking spaces transfer at the signing of the sale or otherwise as agreed between buyer and seller.
Other terms of the sale will be agreed in more detail in negotiations between the seller and buyer.
Other costs
The buyer is responsible for the maintenance charge for the parking space in accordance with the deed. The company charge is €30/month and the financing charge €95.38/month according to the property manager's certificate. The financing charge includes the interest and principal portion; first repayment December 2025.
The shares for sale are subject to a company loan of €12,912.47 (as at 31/12/2025) according to the property manager's certificate dated 08/01/2026. The buyer shall assume responsibility for the company loan attached to the parking space in full.
The buyer is responsible for any transfer tax payable on the purchase in accordance with the tax practice in force at the time.
Withdrawal from the sale
A party who refuses to complete the sale must compensate the other party for reasonable costs incurred from advertising, viewing the property and other necessary actions related to the transaction.
Files
Time left
- Bids
- 0 pcs
- Bidders
- 0 pcs
Item number: 6000974
Viewed 78 times
Viewing the item
YIT housing sales tel. 020 433 4635, asuntomyynti.tampere@yit.fi.
Payment method
Payment method is agreed separately with the seller.
Last updated
8 Jan 2026, 10:01
Share with friends
Muut katsoivat myös
Uusi uniikki panoraamasauna Cube 10.7 puku/olohuoneella, Alavus
Entrepot Trade Oy sells
€14,900
Starting price
18 h 40 min
Time left
NEW Steel Construction of 250 m2 CE Sertificate 1090-1, Helsinki
JZ Group Oy sells
€900
9 bids
1 d 17 h
Time left
Viipalekontit vaihtolava kiskoilla ja nostolenkeillä, Nurmijärvi
AP Trucks Oy sells
€2,000
Starting price
1 d 18 h
Time left
parakki lämpöeristetty porin matilla, Kokemäki
JM auto- ja tavarakauppa sells
€545
32 bids
1 d 19 h
Time left
Myydään autotalliosake Turun keskustassa, Turku
Ulosottolaitos, Helsingin toimipaikka sells
€19,100
170 bids
3 d 11 h
Time left
KORJAAMORAKENNUS PIHA-ALUEINEEN JA RANTASAUNA 3 ha, Juva
Sp-Koti Metsä | Arbour Finland Oy sells
€6,000
12 bids
6 d 19 h
Time left
Monien mahdollisuuksien kiinteistö/ liiketila 341,5 m2 omalla tontilla, Kauhajoki
K. Koivuniemi Oy sells
€69,000
28 bids
8 d 17 h
Time left
Voisit pitää myös näistä
Työmaakoppi / toimistokoppi – siirrettävä, Vantaa
ScanWorks Helsinki Oy sells
€600
1 bid
5 d 19 h
Time left
Saunaperävaunu Iso ja Upea !! Tampereella. Laadukkaista materiaaleista ja huolella tehty., Tampere
Riihari Oy sells
€5,000
7 bids
7 d 17 h
Time left