Strömfors village - kiinteistökehityshanke / tontti ruukkikylän ytimessä. Itä-Uusimaa., Loviisa
Kruununtilat Oy myy
20 000 €
1 tarjous
1 pv 21 t
Aikaa jäljellä
Katsottu 16 549 kertaa
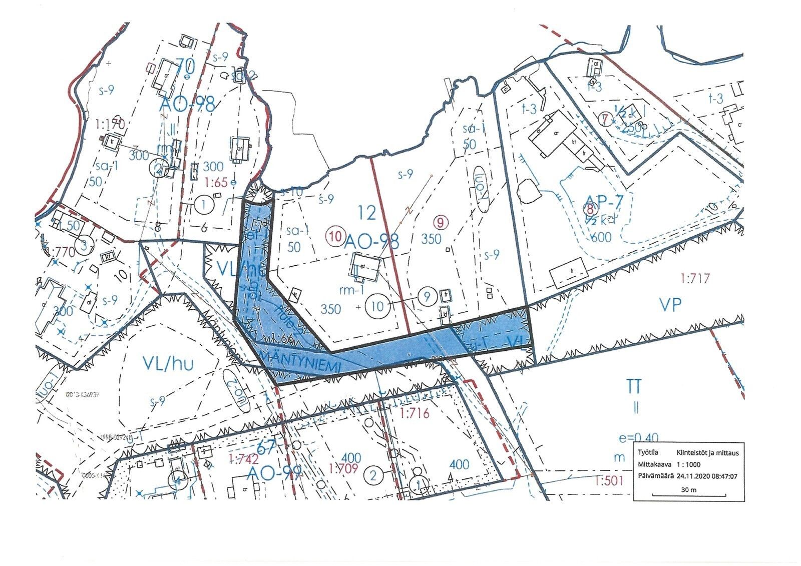
Tontti sijaitsee Ruotsalaisen rannalla ja rantaviiva aukeaa luoteeseen/pohjoiseen.
Tontin ranta on osin kallioista ja osittain hiekkarantaa ja rantaviivaa on noin 40 metriä.
Tontti on kaavoitettu AO-98 ja alueelle saa rakentaa omakotitalon.
Alueella on entinen leirikeskus joka on purkukuntoinen.
Rakennusoikeutta tontilla on 350 neliötä ja 50 neliötä rantasaunalle tai vastaavalle.
Tontin koko 3149 neliötä.
Tontilla 10 on vanha purkukuntoinen seurakunnan kesäkoti.
Asunnon tontti
Tontin omistus: Oma
Kiinteistötunnus: 111-26-12-10
Tontin pinta-ala: 3 149,0 m²
Kaavoitustiedot: Heinolan kaupunki ( 03 ) 84930
Kaavoitustilanne: Asemakaava
Tontti sijaitsee Ruotsalaisen rannalla ja rantaviiva aukeaa luoteeseen/pohjoiseen, hiekkaranta ja rantaviivaa on noin 40 metriä (tontti 10)
Tontti on lohkottu ja merkitty kiinteistörekisteriin 6.11.2020.
Omistajan ilmoituksen mukaan Heinolan kaupunki rakentaa alueelle kunnallistekniikan ja kulkuyhteyden syksyllä 2021.
Tontti on kaavoitettu AO-98 ja alueelle saa rakentaa omakotitalon. Rakennusoikeutta tontiilla on 350 neliötä ja 50 neliötä rantasaunalle tai vastaavalle.
Tontti on rannassa rinnetontti muuten mutta tontin takaosa on tasainen.
Kaavoitustiedot
Heinolan vesilaitokselta saadun tiedon mukaan Liittyminen vesi- ja viemäriverkostoon maksaa 3700,00€ +alv. ja liittyminen hulevesiin lisälasku on n.1480,00€+alv.
Tonttijohdon asennus kaupungintyönä maksaa 300€ + alv. Jos muu taho tekee johdon vesilaitoksen tarkistus maksaa 80€ + alv.
Lisätietoja vesilaitokselta ( 03 ) 84930.
Nämä hinnat jos rakennetaan alle 240 neliötä. Hinnat ovat sitoumuksetta. Voivat muuttua hieman vuosittain.
Lisätietoja antaa: Heinolan kaupunki ( 03 ) 84930
Lisätietoja
Kaupan hyväksymisestä päättää Heinolan seurakunnan kirkkovaltuusto, jonka päätös alistetaan Kirkkohallitukselle vahvistettavaksi. Kauppahinta maksetaan kokonaisuudessaan kaupantekotilaisuudessa, Kirkkohallituksen vahvistamisen jälkeen.
Kirkkohallituksen vahvistus kestää arviolta noin 3-6 kuukautta kaupankäynnin päättymisestä laskettuna. Ostaja maksaa kaupasta varainsiirtoveron 4%, lainhuudatuskulut sekä kaupanvahvistajan palkkion 120 euroa.
Kiinteistörekisterin mukaan kiinteistöveroa ei ole vielä määritelty lohkomisen jälkeen. Tieto 2.6.2021 kiinteistövero viranomaisilta.
Reijo Terävä
p. 044 7700 189reijo.terava@skvl.fi
Kiinteistötoimisto Kymenvirta Oy
Myyjä pidättää oikeuden hyväksyä tai hylätä korkein tarjous.
Kohde myydään käyttäjien välisenä kauppana. Huutokaupat.com ei toimi kaupan osapuolena.
Tarjoajat sitoutuvat siihen, että heidän yhteystietonsa voidaan luovuttaa Huutokaupat.comin toimesta ilmoittajalle myyntipäätöksen ja siitä tiedottamisen mahdollistamiseksi.
Korkeimman huudon tehnyt sitoutuu tekemään huutokaupan päätyttyä kirjallisen ostotarjouksen välitysliikkeen välityksellä. Huutokaupat.com -palvelussa tästä kohteesta jätetty huuto ei sellaisenaan ole vielä sitova tarjous. Välitysliike ottaa yhteyttä korkeimman huudon tehneeseen huutokaupan päättymisen jälkeen, jolloin sovitaan kohteen esittelystä, kohteen asiakirjoihin tutustumisesta sekä kirjallisen ostotarjouksen tekemisestä.
Myyjä ei ole sitoutunut myymään kohdetta korkeimman huudon tehneelle. Myyjä ei myöskään ole sitoutunut myymään kohdetta mahdollisen kirjallisen ostotarjouksen tekijälle. Välitysliike ei vastaa palveluntarjoajan järjestelmän toimivuudesta. Korkein huuto on se huuto, jonka palveluntarjoajan järjestelmä on korkeimpana hyväksynyt. Huudon jättäjä hyväksyy nämä myyntiehdot suorittaessaan huudon huutokaupat.com-palvelussa.
Huutokauppa päättyi 23.1.2022 klo 18.00
MyytyEi tarjouksia
Lähtöhinta 150 000 €
Ei vähennettävää arvonlisäveroa
Huutokauppa päättyy su 23.01.2022 klo 18.00, tai 3 min viimeisen tarjouksen jälkeen
Kohdenumero: 3186685
Katsottu 16 549 kertaa
Sopimuksen mukaan
Maksutapa sovitaan myyjän kanssa erikseen.
13.12.2021 klo 12.40
Kruununtilat Oy myy
20 000 €
1 tarjous
1 pv 21 t
Aikaa jäljellä
Elisa Oyj myy
30 201 €
126 tarjousta
5 pv 17 t
Aikaa jäljellä
Elisa Oyj myy
9 111 €
35 tarjousta
5 pv 18 t
Aikaa jäljellä
Elisa Oyj myy
1 600 €
11 tarjousta
5 pv 18 t
Aikaa jäljellä
Elisa Oyj myy
1 800 €
17 tarjousta
5 pv 18 t
Aikaa jäljellä
Elisa Oyj myy
400 €
3 tarjousta
5 pv 18 t
Aikaa jäljellä
Elisa Oyj myy
400 €
3 tarjousta
5 pv 19 t
Aikaa jäljellä
Elisa Oyj myy
700 €
6 tarjousta
5 pv 19 t
Aikaa jäljellä
Elisa Oyj myy
2 100 €
4 tarjousta
5 pv 19 t
Aikaa jäljellä
Elisa Oyj myy
12 400 €
43 tarjousta
5 pv 19 t
Aikaa jäljellä
Asianajotoimisto Antti Kallio Ky myy
140 000 €
16 tarjousta
5 pv 19 t
Aikaa jäljellä
Elisa Oyj myy
600 €
5 tarjousta
5 pv 20 t
Aikaa jäljellä
Elisa Oyj myy
500 €
4 tarjousta
5 pv 20 t
Aikaa jäljellä
Lapin metsäkiinteistöt OY LKV myy
7 500 €
33 tarjousta
6 pv 19 t
Aikaa jäljellä
Ulosottolaitos, Rovaniemi realisointi (Rovaniemi, Kemi, Kuusamo) myy
3 200 €
28 tarjousta
6 pv 19 t
Aikaa jäljellä
Realog Oy myy
3 000 €
6 tarjousta
6 pv 20 t
Aikaa jäljellä
Realog Oy myy
4 000 €
8 tarjousta
6 pv 20 t
Aikaa jäljellä
LeviErkkilä myy
50 000 €
Lähtöhinta
6 pv 21 t
Aikaa jäljellä